Call Us Today! 1-800-540-1295 | info@TriCountyHomes.com

Manufactured Homes in Pennsylvania

Found 59 Homes Clear Filters

Bungalow 2 16362A

  • Astro Creations
  • Manufactured
  • Single-wide
Beds
Beds 2
Baths
Baths 1
Square Feet
Sq. Ft. 540

Part of the Astro Creations series, the Bungalow 2 16362A offers a compact and highly efficient 540 square foot layout with two bedrooms and one bathroom. This single-wide home features 8’ sidewalls, Shaw flooring, and a mission-style kitchen equipped with staggered 30” overhead cabinets and soft-close drawer guides. Engineered for durability, it includes 2x6 exterior walls and vinyl insulated Low-E windows to maximize energy savings. For a more custom feel, the Premier Plus pack is available, offering upgrades such as finished drywall, hardwood cabinet doors, and a 40-gallon water heater.

View the Bungalow 2 16362A

Triton 16682B

  • Astro Creations
  • Manufactured
  • Single-wide
Beds
Beds 2
Baths
Baths 2
Square Feet
Sq. Ft. 1020

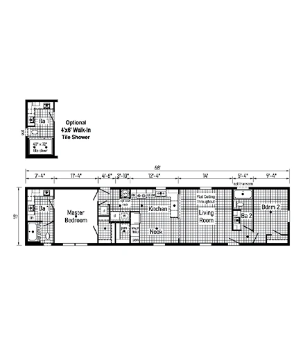
Offering 1,020 square feet of thoughtfully designed space, the Triton 16682B is a versatile two-bedroom, two-bathroom single-wide from the Astro Creations series. The interior features 8’ sidewalls, Shaw flooring, and a contemporary kitchen with 42” overhead cabinets and soft-close drawer guides. Built for durability, it includes 2x6 exterior walls and vinyl insulated Low-E windows. For a premium finish, the Premier Plus package offers upgrades like finished drywall and hardwood cabinet doors.

View the Triton 16682B

Mimas 14763D

  • Astro Creations
  • Manufactured
  • Single-wide
Beds
Beds 3
Baths
Baths 2
Square Feet
Sq. Ft. 1013

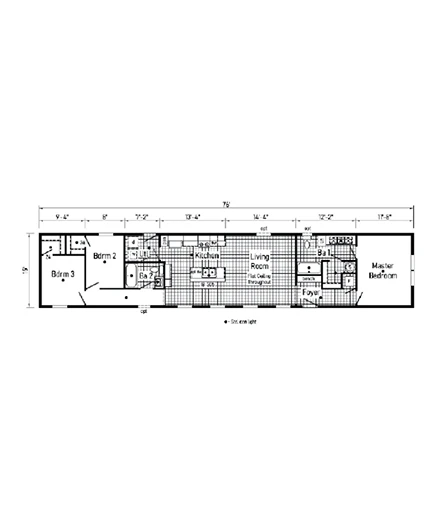
Providing 1,013 square feet of efficient living space, the Mimas 14763D is a premier three-bedroom, two-bathroom single-wide from the Astro Creations series. The interior is highlighted by 8' sidewalls, designer-coordinated window treatments, and a modern kitchen featuring 42" overhead mission-style cabinets with soft-close guides. Built for longevity with 2x6 exterior walls and a transverse floor system, this home also offers the Premier Plus pack for those seeking finished drywall and upgraded hardwood accents.

View the Mimas 14763D

Rhea 16763E

  • Astro Creations
  • Manufactured
  • Single-wide
Beds
Beds 3
Baths
Baths 2
Square Feet
Sq. Ft. 1140

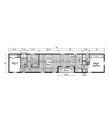
The Rhea 16763E, a highlight of the Astro Creations series, delivers 1,140 square feet of modern living with a smart three-bedroom, two-bathroom floor plan. Key interior features include 8’ sidewalls, Shaw Edgewater carpeting, and a stylish kitchen with KCMA-certified mission cabinetry and soft-close drawer guides. Built for the Western Pennsylvania climate, it features 2x6 exterior walls and energy-efficient vinyl windows. For added elegance, the Premier Plus pack offers upgrades such as finished drywall and hardwood cabinet doors.

View the Rhea 16763E

Pluto 16763C

  • Astro Creations
  • Manufactured
  • Single-wide
Beds
Beds 3
Baths
Baths 2
Square Feet
Sq. Ft. 1140

Boasting 1,140 square feet, the Pluto 16763C is a standout single-wide from the Astro Creations series, featuring a versatile three-bedroom, two-bathroom floor plan. The interior is defined by 8’ sidewalls, Shaw Edgewater carpet, and a modern kitchen complete with 42” overhead cabinets and soft-close drawer guides. Built for efficiency and durability, this home includes vinyl insulated Low-E windows and 2x6 exterior walls. For those seeking a custom feel, the Premier Plus package offers premium upgrades like finished drywall and hardwood cabinet doors throughout.

View the Pluto 16763C

Neptune 16763B

  • Astro Creations
  • Manufactured
  • Single-wide
Beds
Beds 3
Baths
Baths 2
Square Feet
Sq. Ft. 1140

The Neptune 16763B stands out as a premier three-bedroom, two-bathroom model in the Astro Creations series, offering 1,140 square feet of optimized living space. This single-wide home features a high-end kitchen with 42” overhead cabinets, soft-close drawer guides, and a stainless steel sink. Guest and master rooms benefit from energy-efficient Low-E windows and recessed LED lighting throughout. Built for the Western Pennsylvania climate, the structure includes a transverse floor system and 2x6 exterior walls. Choose the Premier Plus pack for finished drywall and hardwood cabinetry to further enhance this modern residence.

View the Neptune 16763B

Uranus 16763A

  • Astro Creations
  • Manufactured
  • Single-wide
Beds
Beds 3
Baths
Baths 2
Square Feet
Sq. Ft. 1140

Spanning 1,140 square feet, the Uranus 16763A from the Astro Creations series provides a spacious three-bedroom, two-bathroom layout. This single-wide home features an open-concept interior with 8’ sidewalls, Shaw flooring, and a chef-inspired kitchen boasting 42” overhead cabinets with soft-close guides. Built with energy-efficient Low-E windows and a robust transverse floor system, it offers lasting durability. Opt for the Premier Plus enhancement pack to add luxury touches like finished drywall and hardwood cabinet doors.

View the Uranus 16763A

Io 16762A

  • Astro Creations
  • Manufactured
  • Single-wide
Beds
Beds 2
Baths
Baths 2
Square Feet
Sq. Ft. 1140

The Io 16762A from the Astro Creations series offers a generous 1,140 sq. ft. layout featuring 2 bedrooms and 2 bathrooms. This single-wide home is constructed with 8’ sidewalls, 2x6 exterior walls, and energy-efficient vinyl Low-E windows. The interior highlights a mission-style kitchen with 42” overhead cabinets, soft-close drawer guides, and Shaw flooring throughout. For an elevated experience, the Premier Plus pack adds finished drywall, hardwood cabinetry, and a deluxe moulding package, making it a standout choice for comfort and style.

View the Io 16762A

Saturn 16682A

  • Astro Creations
  • Manufactured
  • Single-wide
Beds
Beds 2
Baths
Baths 2
Square Feet
Sq. Ft. 1020

The Saturn 16682A from the Astro Creations series offers a spacious 1,020 sq. ft. layout featuring 2 bedrooms and 2 bathrooms. This single-wide home is built with 8’ sidewalls, 2x6 exterior walls, and energy-efficient vinyl Low-E windows. The interior boasts a mission-style kitchen with 42” overhead cabinets and soft-close drawer guides. With standard features like Shaw flooring and the option to upgrade to the Premier Plus pack for finished drywall and hardwood cabinetry, this model combines durability with high-end comfort.

View the Saturn 16682A

Bungalow 3 16461A

  • Astro Creations
  • Manufactured
  • Single-wide
Beds
Beds 1
Baths
Baths 1
Square Feet
Sq. Ft. 690

The Bungalow 3 16461A from the Astro Creations series offers a comfortable 690 sq. ft. layout with 1 bedroom and 1 bathroom. This single-wide home features 8’ sidewalls, Shaw flooring, and a modern kitchen equipped with 42” overhead cabinets and soft-close drawer guides. Built for durability in Western Pennsylvania, it includes 2x6 exterior walls and vinyl Low-E windows. Available upgrades like the Premier Plus pack add premium touches such as finished drywall, hardwood cabinetry, and a 10-year warranty.

View the Bungalow 3 16461A
© Copyright 2025 Tri-County Homes. All Rights Reserved