Call Us Today! 1-800-540-1295 | info@TriCountyHomes.com

The Frontier - Vacation Style Modular Home

A classic vacation home that offers a smart and efficient layout perfect for a small family, a couple, or as a retirement home.

The Frontier is a classic vacation home that offers a smart and efficient layout perfect for a small family, a couple, or as a retirement home. This 1,020 sq. ft. plan provides all the convenience of single-story living with two bedrooms and two full bathrooms. The home features a popular split-bedroom design, ensuring the master suite is a quiet and private retreat. With its charming covered porch and practical floor plan, The Frontier is an excellent and affordable choice.

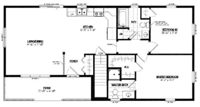
The Frontier Floor Plan

The Frontier floor plan is expertly designed for comfort and privacy. The highlight of the layout is its split-bedroom configuration, which places the master suite on one side of the home and the second bedroom on the opposite side. This popular design is ideal for homeowners who want a quiet personal space away from guest rooms or other family members. The central part of the home is dedicated to a comfortable living and dining area, creating a welcoming hub for daily life.

Specs & Dimensions

The Frontier offers a comfortable single-level layout within a classic and efficient rectangular footprint.

Detail
Specification
Style Ranch
Square Footage 1,020
Bedrooms 2
Bathrooms 2
Dimensions 24' x 48'

Interior Layout

The interior of The Frontier is designed to feel comfortable and private, with a practical flow that maximizes its square footage.

  • Living and Dining Room: The heart of the home is the combined living and dining space, measuring 14'-6" x 11'-0".
  • Efficient Kitchen: The well-designed kitchen measures 13'-9" x 11'-8" and offers a smart, functional workspace.
  • Split-Bedroom Design: The private master bedroom is located on one side of the home, while the second bedroom is situated on the opposite side for maximum privacy.
  • Private Master Suite: The master suite features a spacious 14-2" x 11'-7" bedroom, a private en-suite bathroom, and a large walk-in closet.

Room Dimensions

Room
Dimensions
Living/Dining 14'-6" x 11'-0"
Kitchen 13'-9" x 11'-8"
Master Bedroom 14'-2" x 11'-7"
Bedroom #2 13'-8" x 11'-5"
Porch 11'-0" x 6'-8"

Exterior Design

The Frontier features a simple and timeless ranch exterior with a charming covered porch that creates a classic and welcoming curb appeal.

  • Covered Front Porch: A lovely 11'-0" x 6'-8" covered front porch provides a sheltered entry and a cozy spot to relax.
  • Log Siding Exterior: The rendering shows the home with a beautiful and durable log siding exterior, perfect for a rustic or country setting.
  • Gabled Roofline: A simple and elegant gabled roofline adds to the home's traditional charm.

Available Options & Upgrades

Personalize your Frontier home with a wide range of available options and upgrades.

  • Gourmet Kitchen Packages: Upgrade your kitchen with premium options like granite countertops, a tile backsplash, or custom cabinetry and appliances.
  • Luxury Bathroom Finishes: Customize your bathrooms with upgraded vanities, premium fixtures, and a tiled shower.
  • Exterior Material Upgrades: Choose from a wide array of siding styles and colors, including the beautiful log siding shown in the rendering, to create a custom exterior look.
  • Foundation & Basement Options: The plan includes a stairway to a lower level, making it perfectly suited for a full basement foundation to maximize your storage and potential living space.

Why Choose Modular

Choosing a modular home from Tri-County Homes means embracing a modern, efficient, and high-quality building process. Our homes are constructed in a climate-controlled facility, which offers significant advantages over traditional on-site construction by protecting materials and allowing for meticulous quality control.

Quality Construction from the Ground Up

  • Structure: We use 2×10 floor joists and 2x6 exterior walls (16″ on center) for a stronger frame.
  • Roof System: The roof is constructed with engineered trusses and covered with lifetime architectural shingles.
  • Energy Efficiency: All homes come standard with insulated windows featuring low-E/Argon glass and insulation packages.

High-End Features Included as Standard

  • Kitchens: Our kitchens feature high-quality cabinetry with soft-close drawers and your choice of countertops.
  • Bathrooms: Bathrooms come complete with mirrors, towel racks, and high-quality single-piece tub/shower units.
  • Interior Finishes: We use high-quality interior doors and trim, and all closets include shelving.

Modular Home Service Regions

Our dedicated team coordinates every aspect of your new home's delivery and setup. We provide comprehensive services to customers in:

  • Allegheny County
  • Armstrong County
  • Beaver County
  • Butler County
  • Cambria County
  • Clarion County
  • Crawford County
  • Fayette County
  • Forest County
  • Greene County
  • Indiana County
  • Jefferson County
  • Lawrence County
  • Mercer County
  • Somerset County
  • Venango County
  • Warren County
  • Washington County
  • Westmoreland County
Jump Links
  • The Frontier Floor Plan
  • Specs & Dimensions
  • Interior Layout
  • Exterior Design
  • Available Options & Upgrades
  • Why Choose Modular
  • Tri-County Homes Build Areas
  • Request Pricing
© Copyright 2025 Tri-County Homes. All Rights Reserved