Call Us Today! 1-800-540-1295 | info@TriCountyHomes.com

The Mountaineer - Vacation Style Modular Home

A classic and affordable vacation cabin that offers a complete first-floor living experience with incredible potential for growth.

The Mountaineer is a classic and affordable vacation cabin that offers a complete first-floor living experience with incredible potential for growth. The main floor features 936 sq. ft. of well-designed space, including two bedrooms and a full bathroom. The home is designed around a large, open-concept living and kitchen area, perfect for relaxing after a day outdoors. A key feature is the 504 sq. ft. unfinished second story, which provides a blank canvas to add more bedrooms or a recreation room as your family grows.

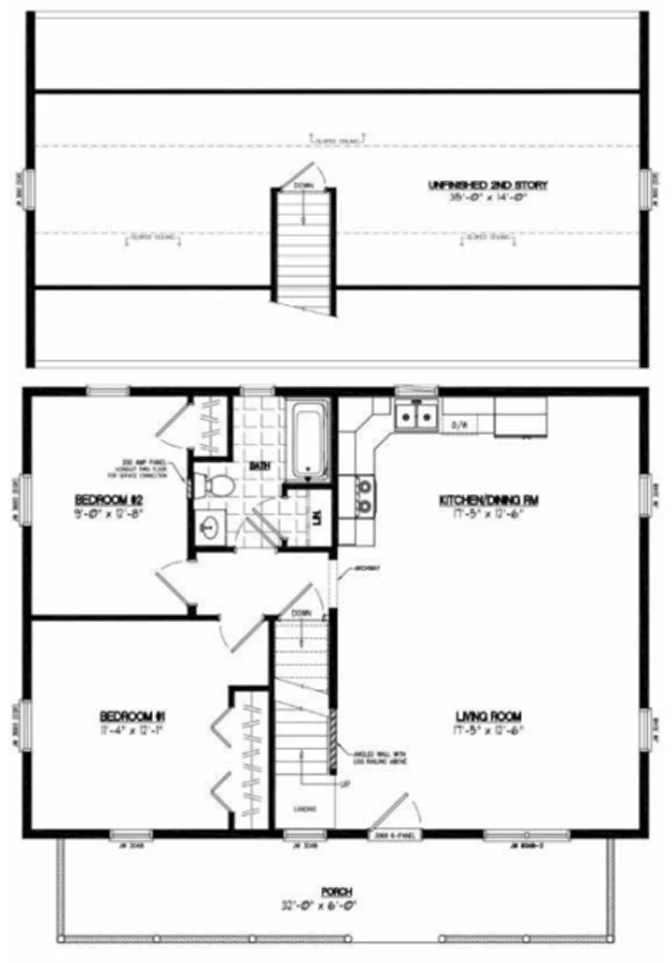
The Mountaineer Floor Plan

The Mountaineer floor plan is expertly designed to maximize space and comfort in a compact and efficient footprint. The layout is centered around a massive, combined living and kitchen/dining area that spans the full width of the home, creating a wonderfully open and inviting space for family and guests. With two bedrooms and a full bathroom conveniently located on the main floor, this plan provides everything you need for a perfect getaway, with the added value of a full second story ready for future expansion.

Specs & Dimensions

The Mountaineer offers a cozy main-floor layout with a large, unfinished second story ready for your custom design.

Detail
Specification
Style Vacation / Log Style
First Floor Square Footage 936
Unfinished Second Story Sq. Ft. 504
Total Potential Sq. Ft. 1,440
Bedrooms 2 (Option for 3+)
Bathrooms 1 (Option for 2+)
Dimensions 26' x 36'

Interior Layout

The interior of The Mountaineer is designed to feel spacious and bright, with an open layout that makes the most of every square foot.

  • Open Living Area: The heart of the home is the large, combined living room and kitchen/dining area, each measuring an impressive 17'-5" x 12-6".
  • Two First-Floor Bedrooms: This plan conveniently includes two bedrooms on the main floor. Bedroom #1 measures 11'-4" x 12'-1", and Bedroom #2 is 9-0" x 12'-8".
  • Central Bathroom: A full bathroom is conveniently located in the central hallway, easily accessible from both bedrooms and the main living area.

Room Dimensions

Room
Dimensions
Living Room 17'-5" x 12'-6"
Kitchen / Dining Room 17'-5" x 12'-6"
Bedroom 1 11'-4" x 12'-1"
Bedroom 2 9'-0" x 12'-8"

Exterior Design

The Mountaineer features a classic log cabin exterior, perfectly suited for a peaceful country or wooded setting.

  • Full Front Porch: A beautiful 32-foot covered front porch spans the full width of the home, providing an expansive outdoor living area for relaxation.
  • Log Siding Exterior: The home features beautiful and durable log siding, providing an authentic and rustic cabin look.
  • Steep Roof with Dormer: The attractive steep roof line and dormer are not only visually appealing but also create the space for the large, unfinished second story.
  • Metal Roof: The rendering showcases a durable and popular metal roof option, ideal for vacation homes in any climate.

Available Options & Upgrades

Personalize your Mountaineer vacation home with a wide range of available options and upgrades.

  • Expandable Second Floor: The 504 sq. ft. unfinished second story is the home's key feature, allowing you to cost-effectively add a third bedroom, a second bathroom, and a recreation room when you're ready.
  • Gourmet Kitchen Packages: Upgrade your kitchen with premium options like granite countertops, a tile backsplash, or custom cabinetry and appliances.
  • Foundation & Basement Options: The plan includes a stairway to a lower level, making it perfectly suited for a full basement foundation to maximize your storage and potential living space.

Why Choose Modular

Choosing a modular home from Tri-County Homes means embracing a modern, efficient, and high-quality building process. Our homes are constructed in a climate-controlled facility, which offers significant advantages over traditional on-site construction by protecting materials and allowing for meticulous quality control.

Quality Construction from the Ground Up

  • Structure: We use 2×10 floor joists and 2x6 exterior walls (16″ on center) for a stronger frame.
  • Roof System: The roof is constructed with engineered trusses and covered with lifetime architectural shingles.
  • Energy Efficiency: All homes come standard with insulated windows featuring low-E/Argon glass and insulation packages.

High-End Features Included as Standard

  • Kitchens: Our kitchens feature high-quality cabinetry with soft-close drawers and your choice of countertops.
  • Bathrooms: Bathrooms come complete with mirrors, towel racks, and high-quality single-piece tub/shower units.
  • Interior Finishes: We use high-quality interior doors and trim, and all closets include shelving.

Where We Build

Tri-County Homes delivers and installs custom modular homes throughout Western Pennsylvania. Our primary build areas include the following counties:

  • Allegheny County
  • Armstrong County
  • Beaver County
  • Butler County
  • Cambria County
  • Clarion County
  • Crawford County
  • Fayette County
  • Forest County
  • Greene County
  • Indiana County
  • Jefferson County
  • Lawrence County
  • Mercer County
  • Somerset County
  • Venango County
  • Warren County
  • Washington County
  • Westmoreland County
Jump Links
  • The Mountaineer Floor Plan
  • Specs & Dimensions
  • Interior Layout
  • Exterior Design
  • Available Options & Upgrades
  • Why Choose Modular
  • Tri-County Homes Build Areas
  • Request Pricing
© Copyright 2025 Tri-County Homes. All Rights Reserved