Call Us Today! 1-800-540-1295 | info@TriCountyHomes.com

The Penniman - Vacation Style Modular Home

A classic vacation home designed to feel bright and spacious, featuring a dramatic two-story living room that is open to the floor above.

The Penniman is a classic vacation home designed to feel bright and spacious, featuring a dramatic two-story living room that is open to the floor above. The main floor offers a complete and comfortable 1,093 sq. ft. layout with two bedrooms and two full bathrooms. The home is designed for getaway relaxation, with an open-concept living, dining, and kitchen area. A key feature is the 486 sq. ft. unfinished second story, which includes a loft and a large future room, providing a perfect path for expansion.

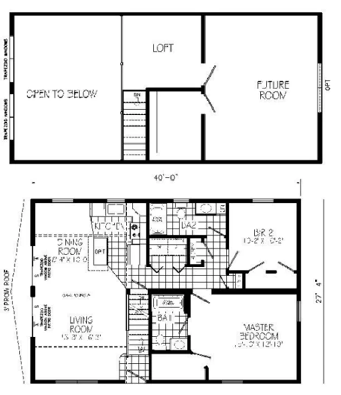
The Penniman Floor Plan

The Penniman floor plan is expertly designed to maximize space and create a grand, open atmosphere. The heart of the home is the magnificent two-story living room with a vaulted ceiling that is open to the loft above, creating a central hub for gatherings. The kitchen and dining room flow seamlessly from this space, enhancing the open feel. With two convenient bedrooms on the main floor, including the master suite, this plan offers a complete living experience with the incredible bonus of a pre-planned second floor for future needs.

Specs & Dimensions

The Penniman offers a cozy main-floor layout with a large, unfinished second story ready for your custom design.

Detail
Specification
Style Vacation / Chalet
First Floor Square Footage 1,093
Unfinished Second Floor Sq. Ft. 486
Total Potential Sq. Ft. 1,579
Bedrooms 2 (with future room for 3+)
Bathrooms 2
Dimensions 27'-4" x 40'-0"

Interior Layout

The interior of The Penniman is defined by its dramatic open spaces and high ceilings, creating a bright and luxurious atmosphere in a compact footprint.

First Floor

  • Two-Story Living Room: The centerpiece of the home is the 15'-8" x 8'-3" living room, which features a soaring vaulted ceiling that is open to the floor above.
  • Open Kitchen and Dining: The modern kitchen is open to the dining room (15'-4" x 10'-0"), creating a bright and connected space for entertaining.
  • Two First-Floor Bedrooms: This plan conveniently includes two bedrooms on the main floor. The master bedroom measures 13'-10" x 12'-10", and the second bedroom is 13'-2" x 9'-2".
  • Private Master Suite: The master bedroom includes a private en-suite bathroom.

Unfinished Second Floor

  • Upstairs Loft: The second floor is designed with a spacious loft that overlooks the living room below, perfect for a secondary sitting area or office.
  • Future Room: A large unfinished "Future Room" provides a blank canvas for a third bedroom, a recreation room, or expansive storage.

Room Dimensions

Room
Dimensions
Living Room 15'-8" x 8'-3"
Dining Room 15'-4" x 10'-0"
Master Bedroom 13'-10" x 12'-10"
Bedroom 2 13'-2" x 9'-2"

Exterior Design

The Penniman is designed with a classic Chalet-style exterior, perfectly suited to capture views in a lakeside or mountain setting.

  • Chalet-Style Prow Roof: The floor plan is designed with a 3-foot prow roof, creating the classic A-frame front with a wall of glass that is a hallmark of this style.
  • Wall of Glass: The design incorporates trapezoid windows and sliding glass doors to flood the great room with natural light and provide panoramic views.
  • Deck for Outdoor Living: This style of home is perfectly suited for a large front deck to create an expansive outdoor living area for grilling, dining, and enjoying the scenery.

Available Options & Upgrades

Personalize your Penniman vacation home with a wide range of available options and upgrades.

  • Expandable Second Floor: The 486 sq. ft. unfinished second story is the home's key feature, allowing you to cost-effectively add a third bedroom, a loft, and potentially another bathroom when you're ready.
  • Gourmet Kitchen Packages: Upgrade your kitchen with premium options like granite countertops, a tile backsplash, or a custom island.
  • Luxury Bathroom Finishes: Customize your bathrooms with upgraded vanities, premium fixtures, and a tiled shower.
  • Foundation & Basement Options: Select the right foundation for your property, whether it's a standard slab, a crawlspace, or a full basement to maximize your storage and potential living space.

Why Choose Modular

Choosing a modular home from Tri-County Homes means embracing a modern, efficient, and high-quality building process. Our homes are constructed in a climate-controlled facility, which offers significant advantages over traditional on-site construction by protecting materials and allowing for meticulous quality control.

Quality Construction from the Ground Up

  • Structure: We use 2×10 floor joists and 2x6 exterior walls (16″ on center) for a stronger frame.
  • Roof System: The roof is constructed with engineered trusses and covered with lifetime architectural shingles.
  • Energy Efficiency: All homes come standard with insulated windows featuring low-E/Argon glass and insulation packages.

High-End Features Included as Standard

  • Kitchens: Our kitchens feature high-quality cabinetry with soft-close drawers and your choice of countertops.
  • Bathrooms: Bathrooms come complete with mirrors, towel racks, and high-quality single-piece tub/shower units.
  • Interior Finishes: We use high-quality interior doors and trim, and all closets include shelving.

Building Across Western PA

Your location is no obstacle. We specialize in building and delivering high-quality modular homes to a wide range of locations, including these Pennsylvania counties:

  • Allegheny County
  • Armstrong County
  • Beaver County
  • Butler County
  • Cambria County
  • Clarion County
  • Crawford County
  • Fayette County
  • Forest County
  • Greene County
  • Indiana County
  • Jefferson County
  • Lawrence County
  • Mercer County
  • Somerset County
  • Venango County
  • Warren County
  • Washington County
  • Westmoreland County
Jump Links
  • The Penniman Floor Plan
  • Specs & Dimensions
  • Interior Layout
  • Exterior Design
  • Available Options & Upgrades
  • Why Choose Modular
  • Tri-County Homes Build Areas
  • Request Pricing
© Copyright 2025 Tri-County Homes. All Rights Reserved