Call Us Today! 1-800-540-1295 | info@TriCountyHomes.com

The Tahoe - Vacation Style Modular Home

A charming and cozy vacation chalet that offers an open floor plan and the potential for future expansion.

The Tahoe is a charming and cozy vacation chalet that offers an open floor plan and the potential for future expansion. This 960 sq. ft. home provides a comfortable and efficient first-floor layout with two bedrooms and one full bathroom. The design is centered around an open-concept living room, dining room, and kitchen, creating a warm and inviting space for a getaway retreat. With its classic log-style exterior and a staircase leading to an expandable second story, The Tahoe is a smart and affordable choice for your vacation property.

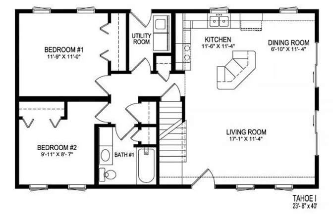
The Tahoe Floor Plan

The Tahoe floor plan is expertly designed to maximize comfort and create a spacious feel in a compact footprint. The layout features an open-concept living room, dining room, and kitchen that flow together seamlessly, making it perfect for family gatherings. Both bedrooms are conveniently located on the main floor, offering easy accessibility. A key feature of this design is the central staircase that leads to a potential second floor, providing a clear path for future expansion.

Specs & Dimensions

The Tahoe offers a complete two-bedroom layout on the main floor with the added value of a potential second story.

Detail
Specification
Style Vacation / Chalet / Log Style
Square Footage 960
Bedrooms 2
Bathrooms 1
Dimensions 23'-8" x 40'

Interior Layout

The interior of The Tahoe is designed to feel spacious and bright, with an open layout that makes the most of every square foot.

  • Open Living and Dining: The heart of the home is the large, combined living room (17'-1" x 11'-4") and dining room (6'-10" x 11'-4"), creating a flexible and expansive area for relaxation.
  • Efficient Kitchen: The well-designed kitchen measures 11'-6" x 11'-4" and is open to the main living areas.
  • Two-Bedroom Layout: This plan includes two comfortable bedrooms. Bedroom #1 measures 11'-9" x 11'-0", and Bedroom #2 is 9'-11" x 8'-7".
  • Convenient Utility Room: A separate utility room provides a dedicated space for laundry.

Room Dimensions

Room
Dimensions
Living Room 17'-1" x 11'-4"
Dining Room 6'-10" x 11'-4"
Kitchen 11'-6" x 11'-4"
Bedroom #1 11'-9" x 11'-0"
Bedroom #2 9'-11" x 8'-7"

Exterior Design

The Tahoe features a stunning log-style exterior designed to perfectly complement a mountain, lake, or wooded setting.

  • Chalet-Style Prow Front: The home's front is dominated by a wall of vista glass under a steep A-frame roof, perfect for lots with a scenic view.
  • Wrap-Around Deck: An expansive deck provides generous outdoor living space for grilling, dining, and enjoying the surrounding landscape.
  • Log Home Exterior: The home is designed with authentic log siding, providing a classic and durable rustic look.

Available Options & Upgrades

Personalize your Tahoe vacation home with a wide range of available options and upgrades.

  • Expandable Second Floor: The staircase in the floor plan leads to an unfinished upper level, offering incredible potential for future expansion. This space is perfect for adding a large loft, more bedrooms, or a second bathroom as your family grows.
  • Gourmet Kitchen Packages: Upgrade your kitchen with premium options like granite countertops, a tile backsplash, or custom cabinetry and appliances.
  • Luxury Bathroom Finishes: Customize your bathroom with upgraded vanities, premium fixtures, and a tiled shower.
  • Foundation & Basement Options: This design is perfectly suited for a walk-out basement on a sloped lot, offering the potential to add even more recreational space or storage.

Why Choose Modular

Choosing a modular home from Tri-County Homes means embracing a modern, efficient, and high-quality building process. Our homes are constructed in a climate-controlled facility, which offers significant advantages over traditional on-site construction by protecting materials and allowing for meticulous quality control.

Quality Construction from the Ground Up

  • Structure: We use 2×10 floor joists and 2x6 exterior walls (16″ on center) for a stronger frame.
  • Roof System: The roof is constructed with engineered trusses and covered with lifetime architectural shingles.
  • Energy Efficiency: All homes come standard with insulated windows featuring low-E/Argon glass and insulation packages.

High-End Features Included as Standard

  • Kitchens: Our kitchens feature high-quality cabinetry with soft-close drawers and your choice of countertops.
  • Bathrooms: Bathrooms come complete with mirrors, towel racks, and high-quality single-piece tub/shower units.
  • Interior Finishes: We use high-quality interior doors and trim, and all closets include shelving.

Your Local Pennsylvania Builder

From bustling suburbs to quiet rural properties, Tri-County Homes has the local knowledge to manage your project. We are proud to serve the following Western PA counties:

  • Allegheny County
  • Armstrong County
  • Beaver County
  • Butler County
  • Cambria County
  • Clarion County
  • Crawford County
  • Fayette County
  • Forest County
  • Greene County
  • Indiana County
  • Jefferson County
  • Lawrence County
  • Mercer County
  • Somerset County
  • Venango County
  • Warren County
  • Washington County
  • Westmoreland County
Jump Links
  • The Tahoe Floor Plan
  • Specs & Dimensions
  • Interior Layout
  • Exterior Design
  • Available Options & Upgrades
  • Why Choose Modular
  • Tri-County Homes Build Areas
  • Request Pricing
© Copyright 2025 Tri-County Homes. All Rights Reserved