Call Us Today! 1-800-540-1295 | info@TriCountyHomes.com

The Woodcliff - Vacation Style Modular Home

A classic vacation chalet that offers a comfortable first-floor living experience with the excellent potential for future expansion.

The Woodcliff is a classic vacation chalet that offers a comfortable first-floor living experience with the excellent potential for future expansion. The main floor features 1,114 sq. ft. of well-designed space, including two bedrooms and two full bathrooms. The home is designed around a dramatic two-story living room with a vaulted ceiling that is open to the floor above. A pre-planned second floor provides a blank canvas to add a third bedroom suite and a loft, making The Woodcliff a smart and flexible choice for your getaway property.

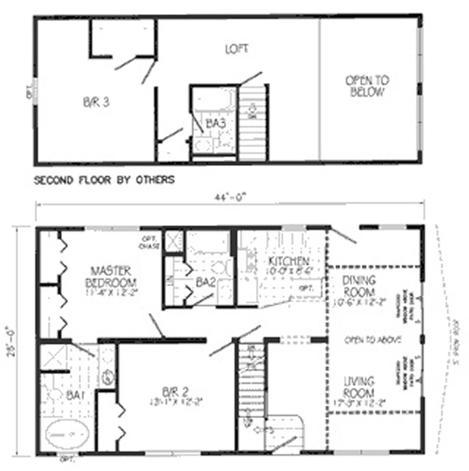
The Woodcliff Floor Plan

The Woodcliff floor plan is designed to maximize space and create a grand, open atmosphere perfect for a retreat. The heart of the home is the magnificent two-story living room, creating a central hub for gatherings that feels incredibly spacious and bright. The kitchen and dining room flow seamlessly from this space, enhancing the open feel. With two convenient bedrooms and bathrooms on the main floor, this plan offers a complete living experience with the incredible bonus of an expandable second floor.

Specs & Dimensions

The Woodcliff offers a cozy main-floor layout with a large, unfinished second story ready for your custom design.

Detail
Specification
Style Vacation / Chalet
First Floor Square Footage 1,114
Bedrooms 2 (Option for 3)
Bathrooms 2 (Option for 3)
Dimensions 26'-0" x 44'-0"

Interior Layout

The interior of The Woodcliff is defined by its dramatic open spaces and high ceilings, creating a bright and luxurious atmosphere in a compact footprint.

First Floor

  • Two-Story Living Room: The centerpiece of the home is the 17'-9" x 12'-2" living room, which features a soaring vaulted ceiling that is open to the floor above.
  • Open Kitchen and Dining: The modern kitchen (10'-0" x 8'-4") is open to the dining room (10'-6" x 12'-2"), creating a bright and connected space for entertaining.
  • Two First-Floor Bedrooms: This plan conveniently includes two bedrooms on the main floor. The master bedroom measures 11'-8" x 12'-2", and the second bedroom is 13'-1" x 12'-2".
  • Two Full Bathrooms: A rare convenience in a home this size, the plan includes two full bathrooms on the main floor, one of which is a private master bath.

Unfinished Second Floor

  • Upstairs Loft: The second floor is designed with a spacious loft that overlooks the living room below, perfect for a secondary sitting area or office.
  • Future Bedroom Suite: A large unfinished "Future Room" provides a blank canvas for a third bedroom and a third full bathroom.

Room Dimensions

Room
Dimensions
Living Room 17'-9" x 12'-2"
Dining Room 10'-6" x 12'-2"
Kitchen 10'-0" x 8'-4"
Master Bedroom 11'-8" x 12'-2"
Bedroom 2 13'-1" x 12'-2"

Exterior Design

The Woodcliff features a classic Chalet-style exterior designed to perfectly complement a mountain, lake, or wooded setting.

  • Chalet-Style Prow Roof: The home's front is dominated by a wall of vista glass under a steep A-frame roof, perfect for lots with a scenic view.
  • Large Front Deck: An expansive deck provides generous outdoor living space for grilling, dining, and enjoying the surrounding landscape.

Available Options & Upgrades

Personalize your Woodcliff vacation home with a wide range of available options and upgrades.

  • Expandable Second Floor: The unfinished second story is the home's key feature, allowing you to cost-effectively add a third bedroom, a third bathroom, and a loft when you're ready.
  • Gourmet Kitchen Packages: Upgrade your kitchen with premium options like granite countertops, a tile backsplash, or custom cabinetry and appliances.
  • Luxury Bathroom Finishes: Customize your bathrooms with upgraded vanities, premium fixtures, and a tiled shower.
  • Foundation & Basement Options: This design is perfectly suited for a walk-out basement on a sloped lot, offering the potential to add even more recreational space or storage.

Why Choose Modular

Choosing a modular home from Tri-County Homes means embracing a modern, efficient, and high-quality building process. Our homes are constructed in a climate-controlled facility, which offers significant advantages over traditional on-site construction by protecting materials and allowing for meticulous quality control.

Quality Construction from the Ground Up

  • Structure: We use 2×10 floor joists and 2x6 exterior walls (16″ on center) for a stronger frame.
  • Roof System: The roof is constructed with engineered trusses and covered with lifetime architectural shingles.
  • Energy Efficiency: All homes come standard with insulated windows featuring low-E/Argon glass and insulation packages.

High-End Features Included as Standard

  • Kitchens: Our kitchens feature high-quality cabinetry with soft-close drawers and your choice of countertops.
  • Bathrooms: Bathrooms come complete with mirrors, towel racks, and high-quality single-piece tub/shower units.
  • Interior Finishes: We use high-quality interior doors and trim, and all closets include shelving.

Construction & Delivery Areas

Our expertise in modular home construction extends throughout the beautiful landscapes of Western PA. Let us build your dream home in any of the following counties:

  • Allegheny County
  • Armstrong County
  • Beaver County
  • Butler County
  • Cambria County
  • Clarion County
  • Crawford County
  • Fayette County
  • Forest County
  • Greene County
  • Indiana County
  • Jefferson County
  • Lawrence County
  • Mercer County
  • Somerset County
  • Venango County
  • Warren County
  • Washington County
  • Westmoreland County
Jump Links
  • The Woodcliff Floor Plan
  • Specs & Dimensions
  • Interior Layout
  • Exterior Design
  • Available Options & Upgrades
  • Why Choose Modular
  • Tri-County Homes Build Areas
  • Request Pricing
© Copyright 2025 Tri-County Homes. All Rights Reserved