Call Us Today! 1-800-540-1295 | info@TriCountyHomes.com

The Wyoming I - Vacation Style Modular Home

A stunning vacation home that offers the convenience of a single-story layout with the dramatic flair of a two-story vaulted living room.

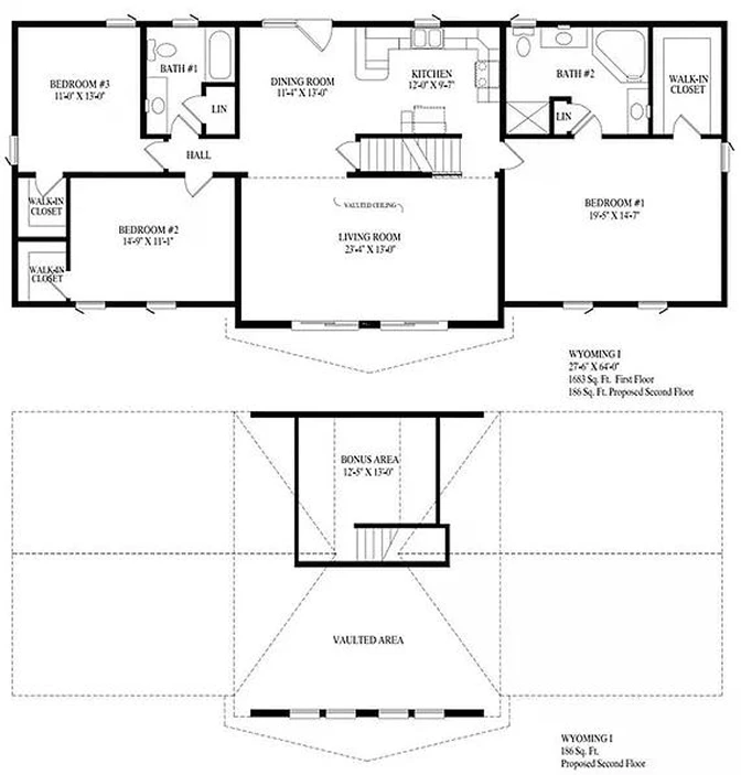
The Wyoming I is a stunning vacation home that offers the convenience of a single-story layout with the dramatic flair of a two-story vaulted living room. This 1,683 sq. ft. floor plan features three bedrooms and two full bathrooms, including a private first-floor master suite, all on the main level for easy access. The heart of the home is the magnificent living room, which soars to the roofline and is designed to be filled with natural light. A proposed second-floor bonus area provides a perfect space for a future loft, making The Wyoming I an impressive and flexible retreat.

The Wyoming I Floor Plan

The Wyoming I floor plan is expertly designed to maximize both comfort and style. The layout is centered around an expansive, vaulted living room, creating a grand central hub for gatherings and relaxation. For privacy, the home features a split-bedroom design, placing the master suite on one side of the home and the two secondary bedrooms on the other. With all the primary living spaces on a single floor, this plan offers a perfect blend of spectacular design and practical living.

Specs & Dimensions

The Wyoming I offers a complete three-bedroom layout on the main floor with the added value of a potential second-story bonus area.

Detail
Specification
Style Vacation / Chalet
First Floor Square Footage 1,683
Proposed Second Floor Sq. Ft. 186
Total Potential Sq. Ft. 1,869
Bedrooms 3
Bathrooms 2
Dimensions 27'-6" x 64'-0"

Interior Layout

The interior of The Wyoming I is designed to feel exceptionally spacious and bright, with a practical flow that maximizes comfort and views.

First Floor

  • Vaulted Living Room: The magnificent 23'-4" x 13'-0" living room is the centerpiece of the home, featuring a soaring vaulted ceiling that is open to the roofline above.
  • Kitchen and Dining: The modern kitchen (12'-0" x 9'-7") is open to the formal dining room (15'-4" x 13'-0"), creating a large, connected space for entertaining.
  • First-Floor Master with Private Bath: This plan includes three comfortable bedrooms, all on the main floor. The master suite (Bedroom #1) is on one side of the home for privacy and features a private en-suite bathroom and a walk-in closet.

Proposed Second Floor

  • Optional Bonus Area: The proposed second floor includes a 12'-5" x 13'-0" bonus area, perfect for a loft, reading nook, or small office space that overlooks the living room below.

Room Dimensions

Room
Dimensions
Living Room 23'-4" x 13'-0"
Dining Room 15'-4" x 13'-0"
Kitchen 12'-0" x 9'-7"
Bedroom 1 (Master) 19'-5" x 14'-7"
Bedroom 2 14'-5" x 11'-1"
Bedroom 3 11'-0" x 13'-0"
Bonus Area 12'-5" x 13'-0"

Exterior Design

The Wyoming I features a striking Chalet-style exterior designed to perfectly complement a scenic mountain or lakeside setting.

  • Chalet-Style A-Frame: The home's central living area is highlighted by a dramatic A-frame gable with a wall of vista glass, perfect for lots with a view.
  • Symmetrical Wings: The central A-frame is flanked by two single-story wings, creating a balanced and impressive facade.

Available Options & Upgrades

Personalize your Wyoming I vacation home with a wide range of available options and upgrades.

  • Expandable Second Floor: The 186 sq. ft. proposed second floor is the home's key feature, allowing you to cost-effectively add a loft or bonus room to your home.
  • Gourmet Kitchen Packages: Upgrade your kitchen with premium options like granite countertops, a tile backsplash, or custom cabinetry and appliances.
  • Luxury Bathroom Finishes: Customize your bathrooms with upgraded vanities, premium fixtures, and a tiled shower.
  • Foundation & Basement Options: Select the right foundation for your property, whether it's a standard slab, a crawlspace, or a full basement to maximize your storage and potential living space.

Why Choose Modular

Choosing a modular home from Tri-County Homes means embracing a modern, efficient, and high-quality building process. Our homes are constructed in a climate-controlled facility, which offers significant advantages over traditional on-site construction by protecting materials and allowing for meticulous quality control.

Quality Construction from the Ground Up

  • Structure: We use 2×10 floor joists and 2x6 exterior walls (16″ on center) for a stronger frame.
  • Roof System: The roof is constructed with engineered trusses and covered with lifetime architectural shingles.
  • Energy Efficiency: All homes come standard with insulated windows featuring low-E/Argon glass and insulation packages.

High-End Features Included as Standard

  • Kitchens: Our kitchens feature high-quality cabinetry with soft-close drawers and your choice of countertops.
  • Bathrooms: Bathrooms come complete with mirrors, towel racks, and high-quality single-piece tub/shower units.
  • Interior Finishes: We use high-quality interior doors and trim, and all closets include shelving.

Proudly Serving Our Local Communities

As a family-owned company since 1962, we have a long history of serving homeowners across Western PA. We are honored to build in the communities located within:

  • Allegheny County
  • Armstrong County
  • Beaver County
  • Butler County
  • Cambria County
  • Clarion County
  • Crawford County
  • Fayette County
  • Forest County
  • Greene County
  • Indiana County
  • Jefferson County
  • Lawrence County
  • Mercer County
  • Somerset County
  • Venango County
  • Warren County
  • Washington County
  • Westmoreland County
Jump Links
  • The Wyoming I Floor Plan
  • Specs & Dimensions
  • Interior Layout
  • Exterior Design
  • Available Options & Upgrades
  • Why Choose Modular
  • Tri-County Homes Build Areas
  • Request Pricing
© Copyright 2025 Tri-County Homes. All Rights Reserved