Call Us Today! 1-800-540-1295 | info@TriCountyHomes.com

The Bannerman - Ranch Style Modular Home

A thoughtfully designed ranch home that perfects the popular split-bedroom layout.

The Bannerman is a thoughtfully designed ranch home that perfects the popular split-bedroom layout. This 1,698 sq. ft. plan offers the best of both worlds: a large, open-concept great room for family gatherings and a private master suite separated from the other bedrooms for peace and quiet. With three bedrooms, two full bathrooms, and an inviting, open flow, The Bannerman is a fantastic choice for families looking for a smart, modern, single-story home.

Floor Plan Overview

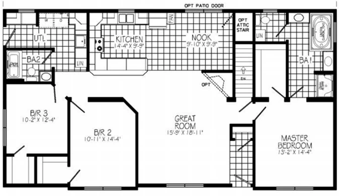
The Bannerman floor plan is centered around a spacious great room that flows seamlessly into the kitchen and breakfast nook, creating a bright and welcoming heart for the home. The main appeal of this design is the intelligent separation of space. The master suite is located on one end of the home, providing a true owner's retreat, while two additional bedrooms and a full bathroom are situated on the opposite end. This layout is ideal for families with children or for those who frequently host guests.

Specs & Dimensions

The Bannerman offers a generous single-level layout with a smart and efficient footprint.

Detail
Specification
Style Ranch
Square Footage 1,698
Bedrooms 3
Bathrooms 2
Dimensions 31' x 56'

Interior Layout

The interior of The Bannerman is designed for a comfortable, modern lifestyle, with an open central hub and private bedroom wings.

  • Split-Bedroom Design: The master suite is located on one side of the home, while two additional bedrooms are on the opposite side, ensuring maximum privacy for everyone.
  • Open Great Room: The large great room measures 15'-9" x 18'-11" and serves as the central gathering space for the family.
  • Kitchen and Nook: The modern kitchen (14'-4" x 9'-9") is open to a sunny breakfast nook (9'-10" x 9'-9"), which features an optional patio door.
  • Private Master Suite: The master bedroom (13'-2" x 14'-4") includes a private en-suite bathroom and a spacious walk-in closet.
  • Utility Room: A dedicated utility room off the kitchen provides a convenient, closed-off space for laundry.

Room Dimensions

  • Great Room: 15'-9" x 18'-11"
  • Kitchen: 14'-4" x 9'-9"
  • Nook: 9'-10" x 9'-9"
  • Master Bedroom: 13'-2" x 14'-4"
  • Bedroom 2: 10'-11" x 14'-4"
  • Bedroom 3: 10'-2" x 12'-4"

Exterior Design

The Bannerman features a classic, low-profile ranch exterior with beautiful material accents that create a sophisticated and welcoming curb appeal.

  • Stone & Siding Exterior: The home's exterior combines the rich texture of stone with low-maintenance siding for a timeless look.
  • Low-Pitch Roofline: The gentle, low-pitched roof is a hallmark of classic ranch architecture.
  • Garage Options: The design pairs perfectly with a detached or breezeway-connected garage, as shown in the rendering.

Available Options & Upgrades

Personalize your Bannerman home with a wide range of available options and upgrades to perfectly match your needs and style.

  • Optional Attic Access: The floor plan is designed with an optional attic stair, providing easy access to the upper truss area for abundant, simple storage.
  • Gourmet Kitchen Packages: Upgrade your kitchen with premium options like granite countertops, a tile backsplash, or an expanded island with seating.
  • Luxury Bathroom Finishes: Customize your bathrooms with upgraded vanities, premium fixtures, and a fully tiled walk-in shower in the master suite.
  • Foundation & Basement Options: Select the right foundation for your property, whether it's a standard slab or crawlspace, or a full basement to maximize your storage and living space.

Why Choose Modular

Choosing a modular home from Tri-County Homes means embracing a modern, efficient, and high-quality building process. Our homes are constructed in a climate-controlled facility, which offers significant advantages over traditional on-site construction by protecting materials and allowing for meticulous quality control.

Quality Construction from the Ground Up

  • Structure: We use 2×10 floor joists and 2x6 exterior walls (16″ on center) for a stronger frame.
  • Roof System: The roof is constructed with engineered trusses and covered with lifetime architectural shingles.
  • Energy Efficiency: All homes come standard with insulated windows featuring low-E/Argon glass and insulation packages.

High-End Features Included as Standard

  • Kitchens: Our kitchens feature high-quality cabinetry with soft-close drawers and your choice of countertops.
  • Bathrooms: Bathrooms come complete with mirrors, towel racks, and high-quality single-piece tub/shower units.
  • Interior Finishes: We use high-quality interior doors and trim, and all closets include shelving.

Build Area

As a family-owned builder with deep roots in Western Pennsylvania since 1962, Tri-County Homes is proud to serve our local communities. We deliver, set, and finish new modular homes across the following counties:

  • Allegheny County
  • Armstrong County
  • Beaver County
  • Butler County
  • Cambria County
  • Clarion County
  • Crawford County
  • Fayette County
  • Forest County
  • Greene County
  • Indiana County
  • Jefferson County
  • Lawrence County
  • Mercer County
  • Somerset County
  • Venango County
  • Warren County
  • Washington County
  • Westmoreland County
Jump Links
  • Floor Plan Overview
  • Specs & Dimensions
  • Interior Layout
  • Exterior Design
  • Available Options & Upgrades
  • Why Choose Modular
  • Build Area
  • Request Pricing
© Copyright 2025 Tri-County Homes. All Rights Reserved