Call Us Today! 1-800-540-1295 | info@TriCountyHomes.com

The Belcourt - Ranch Style Modular Home

An attractive and efficient home designed to provide a spacious feel on a narrower lot.

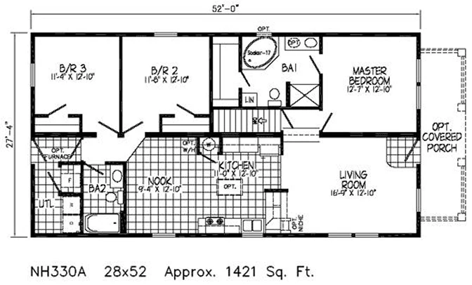
The Belcourt is an attractive and efficient home designed to provide a spacious feel on a narrower lot. This 1,421 sq. ft. plan offers all the convenience of single-story living with three bedrooms and two full bathrooms. The layout features a popular split-bedroom design for privacy and a bright, open-concept living room, kitchen, and nook area that serves as the heart of the home. With its charming front porch and smart use of space, The Belcourt is a perfect choice for any family.

Floor Plan Overview

The Belcourt floor plan is a perfect example of smart design. The layout maximizes space and privacy by placing the master suite on one end of the home and the two additional bedrooms on the opposite end. This split-bedroom configuration is ideal for families with children or for homeowners who frequently host guests. The central living area is open and inviting, with a seamless flow from the living room to the kitchen and breakfast nook, making the home feel spacious and connected.

Specs & Dimensions

The Belcourt offers a comfortable single-level layout packed with features, all within a footprint suitable for narrower properties.

Detail
Specification
Style Ranch
Square Footage 1,421
Bedrooms 3
Bathrooms 2
Dimensions 28' x 52'

Interior Layout

The interior of The Belcourt is designed for a comfortable, modern lifestyle, with an open central hub and private bedroom wings.

  • Split-Bedroom Design: The master suite is located on one side of the home, while two additional bedrooms are on the opposite side, ensuring maximum privacy for everyone.
  • Open Living Area: The large living room (16'-7" x 12'-10") is the central gathering space and is open to the kitchen and nook.
  • Kitchen and Nook: The modern kitchen (11'-0" x 12'-10") flows into a sunny breakfast nook (9'-4" x 12'-10").
  • Private Master Suite: The master bedroom (12'-7" x 12'-10") includes a private en-suite bathroom with an optional soaking tub.
  • Utility Room: A dedicated utility room is located in the secondary bedroom wing, providing a convenient space for the furnace and laundry.

Room Dimensions

Room Dimensions
Living Room 16'-7" x 12'-10"
Kitchen 11'-0" x 12'-10"
Nook 9'-4" x 12'-10"
Master Bedroom 12'-7" x 12'-10"
Bedroom 2 11'-6" x 12'-10"
Bedroom 3 11'-4" x 12'-10"

Exterior Design

The Belcourt features a charming and classic ranch exterior with a welcoming front porch that enhances its curb appeal.

  • Covered Front Porch: A lovely covered front porch with classic railings provides a perfect spot for relaxing outdoors and greeting guests.
  • Gabled Roofline: The simple, clean lines of the gabled roof give the home a timeless and appealing profile.
  • Detached Garage: As shown in the photo, this home pairs beautifully with a detached or breezeway-connected garage.

Available Options & Upgrades

Personalize your Belcourt home with a wide range of available options and upgrades to perfectly match your needs and style.

  • Covered Rear Porch: The floor plan includes an option to add a covered porch off the master bedroom, creating a private outdoor retreat.
  • Luxury Bathroom Finishes: Customize the master bathroom by adding the optional soaking tub or upgrading vanities and fixtures.
  • Gourmet Kitchen Packages: Upgrade your kitchen with premium options like granite countertops, a tile backsplash, or custom cabinetry and appliances.
  • Foundation & Basement Options: The plan includes a stairway to a lower level, making it perfectly suited for a full basement foundation to maximize your storage and potential living space.

Why Choose Modular

Choosing a modular home from Tri-County Homes means embracing a modern, efficient, and high-quality building process. Our homes are constructed in a climate-controlled facility, which offers significant advantages over traditional on-site construction by protecting materials and allowing for meticulous quality control.

Quality Construction from the Ground Up

  • Structure: We use 2×10 floor joists and 2x6 exterior walls (16″ on center) for a stronger frame.
  • Roof System: The roof is constructed with engineered trusses and covered with lifetime architectural shingles.
  • Energy Efficiency: All homes come standard with insulated windows featuring low-E/Argon glass and insulation packages.

High-End Features Included as Standard

  • Kitchens: Our kitchens feature high-quality cabinetry with soft-close drawers and your choice of countertops.
  • Bathrooms: Bathrooms come complete with mirrors, towel racks, and high-quality single-piece tub/shower units.
  • Interior Finishes: We use high-quality interior doors and trim, and all closets include shelving.

Tri-County Homes Build Locations

Wondering if we build in your area? Our team provides complete modular home construction services across an extensive portion of Western Pennsylvania, including:

  • Allegheny County
  • Armstrong County
  • Beaver County
  • Butler County
  • Cambria County
  • Clarion County
  • Crawford County
  • Fayette County
  • Forest County
  • Greene County
  • Indiana County
  • Jefferson County
  • Lawrence County
  • Mercer County
  • Somerset County
  • Venango County
  • Warren County
  • Washington County
  • Westmoreland County
Jump Links
  • Floor Plan Overview
  • Specs & Dimensions
  • Interior Layout
  • Exterior Design
  • Available Options & Upgrades
  • Why Choose Modular
  • Build Area
  • Request Pricing
© Copyright 2025 Tri-County Homes. All Rights Reserved