Call Us Today! 1-800-540-1295 | info@TriCountyHomes.com

The Berwick - Ranch Style Modular Home

A classic ranch home that combines a timeless exterior with a highly functional, family-friendly layout.

The Berwick is a classic ranch home that combines a timeless exterior with a highly functional, family-friendly layout. This 1,152 sq. ft. plan provides all the convenience of single-story living with three large bedrooms and two full bathrooms. The home features a spacious kitchen, defined living and dining areas, and a full-width covered front porch that creates wonderful curb appeal. For those seeking a traditional and practical home, The Berwick is an outstanding choice.

Floor Plan Overview

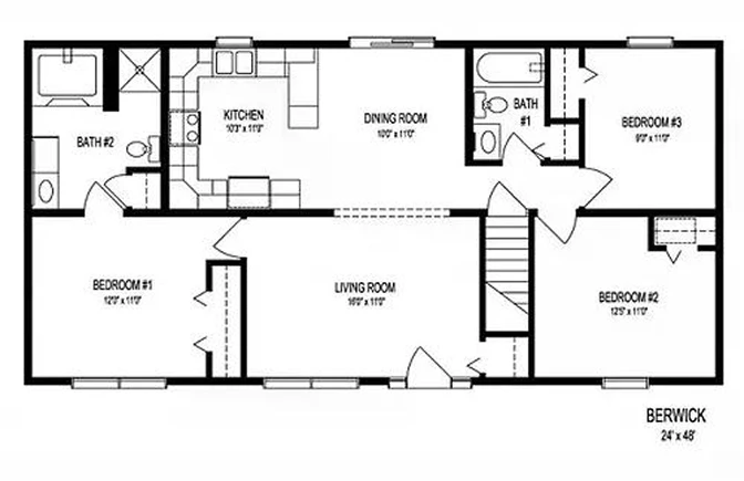
The Berwick floor plan is designed for traditional comfort and practicality. The layout offers a pleasing balance of open connection and defined spaces, with a large living room that flows into a separate dining room. The three bedrooms are well-proportioned and conveniently located. The master bedroom and its bath are situated on one side of the living room, while the two additional bedrooms are on the other, providing a smart separation of space for families.

Specs & Dimensions

The Berwick offers a comfortable single-level layout within a classic and efficient rectangular footprint.

Detail
Specification
Style Ranch
Square Footage 1,152
Bedrooms 3
Bathrooms 2
Dimensions 24' x 48'

Interior Layout

The interior of The Berwick is designed to feel both spacious and organized, with generous room sizes and a clear, functional flow.

  • Defined Living & Dining: The home features a large living room (16'5" x 11'0") and an adjacent, separate dining room (10'0" x 11'0"), perfect for both daily life and formal entertaining.
  • Spacious Kitchen: A large, efficient kitchen measuring 10'3" x 11'0" provides ample counter and cabinet space.
  • Large Bedrooms: This plan includes three comfortable bedrooms. Bedroom #1 measures 12'0" x 11'0", the large Bedroom #2 is 12'5" x 11'0", and Bedroom #3 is 9'0" x 11'0".
  • Convenient Bathrooms: Two full bathrooms are included, with one serving as a private bath for Bedroom #1 and the other located conveniently to the other two bedrooms.

Room Dimensions

Room Dimensions
Living Room 16'5" x 11'0"
Dining Room 10'0" x 11'0"
Kitchen 10'3" x 11'0"
Bedroom #1 12'0" x 11'0"
Bedroom #2 12'5" x 11'0"
Bedroom #3 9'0" x 11'0"

Exterior Design

The Berwick features a charming and timeless ranch exterior with a welcoming front porch that enhances its classic curb appeal.

  • Full Front Porch: A beautiful covered front porch spans the full width of the home, offering a perfect spot for outdoor relaxation and creating an inviting entrance.
  • Gabled Entry: A central gable over the entry adds a stylish architectural focal point and breaks up the roofline.
  • Classic Siding & Shutters: The combination of low-maintenance siding and traditional shutters gives the home a timeless, established look.

Available Options & Upgrades

Personalize your Berwick home with a wide range of available options and upgrades to perfectly match your needs and style.

  • Gourmet Kitchen Packages: Upgrade your spacious kitchen with premium options like granite countertops, a tile backsplash, or custom cabinetry and appliances.
  • Luxury Bathroom Finishes: Customize your bathrooms with upgraded vanities, premium fixtures, and a tiled shower.
  • Exterior Material Upgrades: Choose from a wide array of siding styles and colors, or add a stone or brick wainscot to the front of the home for a custom look.
  • Foundation & Basement Options: The plan includes a stairway to a lower level, making it perfectly suited for a full basement foundation to maximize your storage and potential living space.

Why Choose Modular

Choosing a modular home from Tri-County Homes means embracing a modern, efficient, and high-quality building process. Our homes are constructed in a climate-controlled facility, which offers significant advantages over traditional on-site construction by protecting materials and allowing for meticulous quality control.

Quality Construction from the Ground Up

  • Structure: We use 2×10 floor joists and 2x6 exterior walls (16″ on center) for a stronger frame.
  • Roof System: The roof is constructed with engineered trusses and covered with lifetime architectural shingles.
  • Energy Efficiency: All homes come standard with insulated windows featuring low-E/Argon glass and insulation packages.

High-End Features Included as Standard

  • Kitchens: Our kitchens feature high-quality cabinetry with soft-close drawers and your choice of countertops.
  • Bathrooms: Bathrooms come complete with mirrors, towel racks, and high-quality single-piece tub/shower units.
  • Interior Finishes: We use high-quality interior doors and trim, and all closets include shelving.

Proudly Serving Our Local Communities

As a family-owned company since 1962, we have a long history of serving homeowners across Western PA. We are honored to build in the communities located within:

  • Allegheny County
  • Armstrong County
  • Beaver County
  • Butler County
  • Cambria County
  • Clarion County
  • Crawford County
  • Fayette County
  • Forest County
  • Greene County
  • Indiana County
  • Jefferson County
  • Lawrence County
  • Mercer County
  • Somerset County
  • Venango County
  • Warren County
  • Washington County
  • Westmoreland County
Jump Links
  • Floor Plan Overview
  • Specs & Dimensions
  • Interior Layout
  • Exterior Design
  • Available Options & Upgrades
  • Why Choose Modular
  • Build Area
  • Request Pricing
© Copyright 2025 Tri-County Homes. All Rights Reserved