Call Us Today! 1-800-540-1295 | info@TriCountyHomes.com

The Booth Bay - Luxury Vacation Home

A stunning home that perfectly blends modern, open-concept design with the flexibility of a traditional Luxury home.

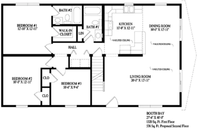
The Booth Bay is a stunning home that perfectly blends modern, open-concept design with the flexibility of a traditional Luxury home. The first floor offers 1,320 square feet of bright and airy living space, featuring three bedrooms and two full bathrooms. The heart of the home is the expansive great room, where the living room, dining room, and kitchen are all connected under dramatic vaulted ceilings. With a proposed second floor ready for future expansion, The Booth Bay is a spectacular choice for those who love impressive views and open spaces.

Floor Plan Overview

The Booth Bay floor plan is designed to maximize light, space, and views. The layout is centered around an incredible open-concept great room where vaulted ceilings extend across the kitchen, dining room, and living room, creating a massive, connected area perfect for entertaining and family life. The bedroom layout offers a split design for privacy, with the master suite on one side of the home and two additional bedrooms on the other.

Specs & Dimensions

The Booth Bay offers a generous main-floor layout with a pre-planned second floor ready for future expansion.

Detail
Specification
Style Luxury / Vacation
First Floor Sq. Ft. 1,320
Proposed Second Floor Sq. Ft. 536
Total Potential Sq. Ft. 1,856
Bedrooms 3
Bathrooms 2
Dimensions 27'-6" x 48'-0"

Interior Layout

The interior of The Booth Bay is defined by its dramatic open spaces and high ceilings, creating a bright and luxurious atmosphere.

  • Open Great Room with Vaulted Ceilings: The centerpiece of the home is the combined living room (20'-0" x 12'-11"), dining room (10'-0" x 12'-11"), and kitchen (10'-0" x 12'-11"), all unified under soaring vaulted ceilings.
  • Private Master Suite: The master bedroom (12'-10" x 12'-11") is a peaceful retreat featuring a large walk-in closet and a private en-suite bathroom.
  • Additional Bedrooms: Two more bedrooms (10'-0" x 12'-11" and 10'-6" x 9'-6") are located on the opposite side of the home, sharing a second full bathroom.

Room Dimensions

Room Dimensions
Living Room 20'-0" x 12'-11"
Dining Room 10'-0" x 12'-11"
Kitchen 10'-0" x 12'-11"
Bedroom #1 (Master) 12'-10" x 12'-11"
Bedroom #2 10'-0" x 12'-11"
Bedroom #3 10'-6" x 9'-6"

Exterior Design

The Booth Bay features a striking exterior with a dramatic A-frame front, designed to capture views and create a seamless connection with the outdoors.

  • A-Frame Prow Front: The home's front is dominated by a wall of vista glass under a steep A-frame roofline, perfect for lots with a view.
  • Large Wrap-Around Deck: An expansive deck provides generous space for outdoor dining, entertaining, and enjoying the surrounding landscape.
  • Walk-Out Basement Design: As shown in the rendering, this home is perfectly suited for a sloped lot, allowing for a walk-out basement with integrated garages or additional living space.

Expandable Second Floor: A Home That Grows with You

A key feature of The Booth Bay is the 536 sq. ft. proposed second floor, a blank canvas ready to be transformed into additional living space. This area is ideal for adding value and functionality to your home as your needs evolve over time.

Common Uses for Your Flexible Second Floor

  • Additional Bedrooms & Guest Suites: Easily add another large bedroom and bathroom to create a private guest suite or rooms for a growing family.
  • A Dedicated Home Office or Loft: Design a quiet, productive home office or an open loft area that overlooks the great room below.
  • A Spacious Playroom or Rec Room: Create the ultimate kids' playroom or a cozy media room for family movie nights, keeping toys and entertainment contained upstairs.

The Smart Investment: Build for Tomorrow, Today

Investing in a home with an expandable second floor is a financially savvy decision. You build and pay for the space you need now while securing the square footage for your future. This approach avoids the high cost and disruption of a traditional home addition later on.

Why Choose Modular

Choosing a modular home from Tri-County Homes means embracing a modern, efficient, and high-quality building process. Our homes are constructed in a climate-controlled facility, which offers significant advantages over traditional on-site construction by protecting materials and allowing for meticulous quality control.

Quality Construction from the Ground Up

  • Structure: We use 2×10 floor joists and 2x6 exterior walls (16″ on center) for a stronger frame.
  • Roof System: The roof is constructed with engineered trusses and covered with lifetime architectural shingles.
  • Energy Efficiency: All homes come standard with insulated windows featuring low-E/Argon glass and insulation packages.

High-End Features Included as Standard

  • Kitchens: Our kitchens feature high-quality cabinetry with soft-close drawers and your choice of countertops.
  • Bathrooms: Bathrooms come complete with mirrors, towel racks, and high-quality single-piece tub/shower units.
  • Interior Finishes: We use high-quality interior doors and trim, and all closets include shelving.

Where We Build

Tri-County Homes delivers and installs custom modular homes throughout Western Pennsylvania. Our primary build areas include the following counties:

  • Allegheny County
  • Armstrong County
  • Beaver County
  • Butler County
  • Cambria County
  • Clarion County
  • Crawford County
  • Fayette County
  • Forest County
  • Greene County
  • Indiana County
  • Jefferson County
  • Lawrence County
  • Mercer County
  • Somerset County
  • Venango County
  • Warren County
  • Washington County
  • Westmoreland County
Jump Links
  • Floor Plan Overview
  • Specs & Dimensions
  • Interior Layout
  • Exterior Design
  • Expandable Second Floor
  • Why Choose Modular
  • Build Area
  • Request Pricing
© Copyright 2025 Tri-County Homes. All Rights Reserved