Call Us Today! 1-800-540-1295 | info@TriCountyHomes.com

The Butler - Raised Ranch Home

A classic Raised Ranch, perfectly suited for sloped or hillside properties.

The Butler is a classic Raised Ranch, a style that makes brilliant use of space and is perfectly suited for sloped or hillside properties. This 1,344 sq. ft. home features a comfortable and convenient main living level with three bedrooms and two full bathrooms. The split-foyer design provides direct access to both the main floor and a spacious lower level, which typically includes a two-car garage and offers excellent potential for future finishing. For those looking for a smart, budget-friendly, two-level home, The Butler is an ideal choice.

Floor Plan Overview

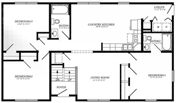
The Butler floor plan is designed for maximum efficiency and comfortable living. The split-foyer entry guides you up to a spacious main level where all the primary living spaces are conveniently located. The layout features a large country kitchen that serves as the heart of the home, with an adjacent living room for relaxation. The bedrooms are well-sized and located on the same floor, making it perfect for families. The lower level provides a massive amount of space for a garage, storage, or future expansion.

Specs & Dimensions

The Butler offers a complete three-bedroom layout on its main floor, with the added benefit of a full lower level.

Detail
Specification
Style Raised Ranch
Square Footage 1,344 (Main Level)
Bedrooms 3
Bathrooms 2
Dimensions Varies by configuration

Interior Layout

The main level of The Butler is designed for easy, comfortable living, with a clear and functional flow between rooms.

  • Split-Foyer Entry: A defining feature of this style, the foyer provides stair access up to the main living area and down to the lower level garage and storage space.
  • Spacious Country Kitchen: The large, open 19'-8" x 13'-0" country kitchen serves as both a kitchen and dining area, creating a wonderful hub for family meals.
  • Comfortable Living Room: An adjacent living room measuring 12'-2" x 13'-0" provides a cozy and separate space for relaxation.
  • Three Main-Floor Bedrooms: The home includes three comfortable bedrooms on the main level. Bedroom #1 is 11'-9" x 13'-0", Bedroom #2 is 12'-10" x 13'-0", and Bedroom #3 is 13'-9" x 11'-0".
  • Convenient Utility Room: A dedicated utility and laundry room is conveniently located on the main floor.

Room Dimensions

Room Dimensions
Living Room 12'-2" x 13'-0"
Country Kitchen 19'-8" x 13'-0"
Bedroom #1 11'-9" x 13'-0"
Bedroom #2 12'-10" x 13'-0"
Bedroom #3 13'-9" x 11'-0"
Utility Room 7'-11" x 7'-6"
Bathroom #1 5'-2" x 9'-5"

Exterior Design

The Butler features the classic, practical profile of a Raised Ranch, making it a perfect fit for a variety of property types, especially those with a slope.

  • Raised Ranch Profile: The two-level design elevates the main living quarters, providing better views and allowing for a drive-in garage on the lower level.
  • Brick and Siding Façade: The photo shows a timeless combination of a durable brick lower level and low-maintenance siding on the main level.
  • Lower-Level Garage: A key benefit of this style is the integrated two-car garage on the lower level, which provides protected parking and storage without taking up space on the main floor.

Available Options & Upgrades

Personalize your Butler home with a wide range of available options and upgrades to perfectly match your needs and style.

  • Lower Level Finishing: The spacious lower level offers incredible potential. Finish this area to create a large family rec room, a home office, a workshop, or additional bedrooms, effectively doubling your living space.
  • Gourmet Kitchen Packages: Upgrade your country kitchen with premium options like granite countertops, a tile backsplash, or an expanded island with seating.
  • Luxury Bathroom Finishes: Customize your bathrooms with upgraded vanities, premium fixtures, and a tiled shower.
  • Exterior Material Upgrades: Choose from a wide array of siding, brick, and stone styles and colors to create a custom exterior look that is uniquely yours.

Why Choose Modular

Choosing a modular home from Tri-County Homes means embracing a modern, efficient, and high-quality building process. Our homes are constructed in a climate-controlled facility, which offers significant advantages over traditional on-site construction by protecting materials and allowing for meticulous quality control.

Quality Construction from the Ground Up

  • Structure: We use 2×10 floor joists and 2x6 exterior walls (16″ on center) for a stronger frame.
  • Roof System: The roof is constructed with engineered trusses and covered with lifetime architectural shingles.
  • Energy Efficiency: All homes come standard with insulated windows featuring low-E/Argon glass and insulation packages.

High-End Features Included as Standard

  • Kitchens: Our kitchens feature high-quality cabinetry with soft-close drawers and your choice of countertops.
  • Bathrooms: Bathrooms come complete with mirrors, towel racks, and high-quality single-piece tub/shower units.
  • Interior Finishes: We use high-quality interior doors and trim, and all closets include shelving.

Our Western Pennsylvania Service Area

With deep roots in the region, Tri-County Homes is a proud Western Pennsylvania builder. We are dedicated to constructing quality modular homes for our neighbors in the following counties:

  • Allegheny County
  • Armstrong County
  • Beaver County
  • Butler County
  • Cambria County
  • Clarion County
  • Crawford County
  • Fayette County
  • Forest County
  • Greene County
  • Indiana County
  • Jefferson County
  • Lawrence County
  • Mercer County
  • Somerset County
  • Venango County
  • Warren County
  • Washington County
  • Westmoreland County
Jump Links
  • Floor Plan Overview
  • Specs & Dimensions
  • Interior Layout
  • Exterior Design
  • Available Options & Upgrades
  • Why Choose Modular
  • Build Area
  • Request Pricing
© Copyright 2025 Tri-County Homes. All Rights Reserved