Call Us Today! 1-800-540-1295 | info@TriCountyHomes.com

The Christina - Ranch Style Modular Home

A luxurious and expansive ranch home designed for those who love to entertain.

The Christina is a luxurious and expansive ranch home designed for those who love to entertain. With an impressive 2,858 square feet of living space, this home features three bedrooms, two full bathrooms, and an optional two-car garage. The signature feature of this home is its absolutely massive great room, which combines with the open kitchen and dining area to create an unforgettable space for hosting family and friends. For those seeking a truly grand single-story home, The Christina delivers on every level.

Floor Plan Overview

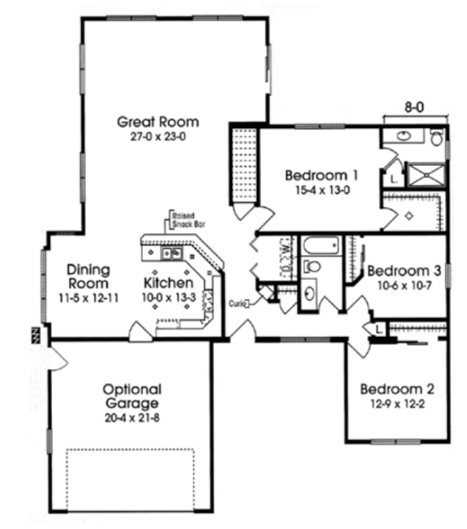
The Christina floor plan is the epitome of open-concept living, designed around a breathtaking great room that serves as the home's central hub. This layout is perfect for those who host frequent gatherings, as the kitchen, dining, and living spaces flow together seamlessly. For privacy, the home features a split-bedroom design, placing the private master suite in its own wing, separate from the two secondary bedrooms. This creates a perfect balance between grand, social spaces and quiet, personal retreats.

Specs & Dimensions

The Christina offers an exceptionally generous single-level layout, providing nearly 3,000 square feet of well-designed living space.

Detail
Specification
Style Ranch
Square Footage 2,858
Bedrooms 3
Bathrooms 2
Dimensions 54' x 51'
Garage Optional 2-Car (20'-4" x 21'-8")

Interior Layout

The interior of The Christina is designed to feel grand and spacious, with an intelligent flow that maximizes both social spaces and private quarters.

  • Massive Great Room: The stunning 27'-0" x 23'-0" great room is the centerpiece of the home, offering incredible flexibility for furniture arrangement and hosting large gatherings.
  • Open Kitchen and Dining: The modern kitchen (10'-0" x 13'-3") features a raised snack bar and is completely open to the great room and the adjacent dining room (11'-5" x 12'-11").
  • Split-Bedroom Design: The master suite is located in a private wing on one side of the home, while the two additional bedrooms are situated on the opposite side.
  • Private Master Suite: The master bedroom (15'-4" x 13'-0") is a true retreat, featuring a private bathroom and a large walk-in closet.
  • Secondary Bedrooms: Two more comfortable bedrooms (12'-9" x 12'-2" and 10'-6" x 10'-7") share the home's second full bathroom.

Room Dimensions

Room Dimensions
Great Room 27'-0" x 23'-0"
Dining Room 11'-5" x 12'-11"
Kitchen 10'-0" x 13'-3"
Bedroom 1 (Master) 15'-4" x 13'-0"
Bedroom 2 12'-9" x 12'-2"
Bedroom 3 10'-6" x 10'-7"
Optional Garage 20'-4" x 21'-8"

Exterior Design

The Christina features a sophisticated exterior with a complex, interesting roofline and elegant details that create upscale curb appeal.

  • Complex Roofline: Multiple intersecting gables give the home a dynamic, custom-built appearance that stands out from a typical ranch.
  • Covered Front Porch: A cozy covered porch provides a sheltered and welcoming entry point to the home.
  • Elegant Bay Window: A large, multi-paned bay window adds a touch of elegance to the front of the home and allows for abundant natural light.
  • Optional Attached Garage: The plan includes an option for a two-car attached garage that integrates seamlessly with the home's design.

Available Options & Upgrades

Personalize your Christina home with a wide range of available options and upgrades to perfectly match your needs and style.

  • Optional Garage: The floor plan is designed with an optional 20'-4" x 21'-8" two-car garage, allowing you to add it based on your needs and budget.
  • Gourmet Kitchen Packages: Upgrade your kitchen with premium options like granite or quartz countertops, a full-height tile backsplash, or custom cabinetry and appliances.
  • Luxury Bathroom Finishes: Customize your master bathroom with a fully tiled walk-in shower, a freestanding tub, or premium dual vanities.
  • Foundation & Basement Options: Select the right foundation for your property, whether it's a standard slab, a crawlspace, or a full basement to maximize your storage and potential living space.

Why Choose Modular

Choosing a modular home from Tri-County Homes means embracing a modern, efficient, and high-quality building process. Our homes are constructed in a climate-controlled facility, which offers significant advantages over traditional on-site construction by protecting materials and allowing for meticulous quality control.

Quality Construction from the Ground Up

  • Structure: We use 2×10 floor joists and 2x6 exterior walls (16″ on center) for a stronger frame.
  • Roof System: The roof is constructed with engineered trusses and covered with lifetime architectural shingles.
  • Energy Efficiency: All homes come standard with insulated windows featuring low-E/Argon glass and insulation packages.

High-End Features Included as Standard

  • Kitchens: Our kitchens feature high-quality cabinetry with soft-close drawers and your choice of countertops.
  • Bathrooms: Bathrooms come complete with mirrors, towel racks, and high-quality single-piece tub/shower units.
  • Interior Finishes: We use high-quality interior doors and trim, and all closets include shelving.

Tri-County Homes Build Locations

Wondering if we build in your area? Our team provides complete modular home construction services across an extensive portion of Western Pennsylvania, including:

  • Allegheny County
  • Armstrong County
  • Beaver County
  • Butler County
  • Cambria County
  • Clarion County
  • Crawford County
  • Fayette County
  • Forest County
  • Greene County
  • Indiana County
  • Jefferson County
  • Lawrence County
  • Mercer County
  • Somerset County
  • Venango County
  • Warren County
  • Washington County
  • Westmoreland County
Jump Links
  • Floor Plan Overview
  • Specs & Dimensions
  • Interior Layout
  • Exterior Design
  • Available Options & Upgrades
  • Why Choose Modular
  • Build Area
  • Request Pricing
© Copyright 2025 Tri-County Homes. All Rights Reserved