Call Us Today! 1-800-540-1295 | info@TriCountyHomes.com

The Cloverdale - Ranch Style Modular Home

A beautifully designed ranch home that offers a popular split-bedroom layout perfect for modern family living.

The Cloverdale is a beautifully designed ranch home that offers a popular split-bedroom layout perfect for modern family living. This 1,421 sq. ft. plan provides all the convenience of single-story living with three bedrooms and two full bathrooms. The heart of the home is a spacious, open-concept living and dining area that flows into a large U-shaped kitchen with a walk-in pantry. With its attractive exterior and smart floor plan, The Cloverdale is an excellent choice for any family.

Floor Plan Overview

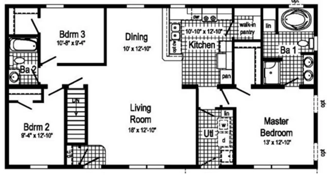
The Cloverdale floor plan is designed for both comfortable family gatherings and private relaxation. The open-concept living and dining room creates a large, inviting central hub for daily life and entertaining. The highlight of the layout is its split-bedroom design, which places the master suite on one side of the home and the two secondary bedrooms on the opposite side. This configuration provides a quiet and private retreat for the homeowners, making it a highly sought-after design for families.

Specs & Dimensions

The Cloverdale offers a comfortable single-level layout within a classic and efficient rectangular footprint.

Detail
Specification
Style Ranch
Square Footage 1,421
Bedrooms 3
Bathrooms 2
Dimensions 28' x 52'

Interior Layout

The interior of The Cloverdale is designed to feel open and spacious, with an intelligent flow that enhances its comfortable layout.

  • Open Living and Dining: The home features a large, connected living room (18' x 12'-10") and dining room (10' x 12'-10"), creating a generous and flexible space for family activities.
  • U-Shaped Kitchen: The well-designed kitchen (10'-10" x 12'-10") features an efficient U-shape, plenty of counter space, and a desirable walk-in pantry for extra storage.
  • Split-Bedroom Design: The private master bedroom (13' x 12'-10") is located on one side of the home, while two additional bedrooms (9'-4" x 12'-10" and 10'-8" x 9'-4") are situated on the opposite side for privacy.
  • Private Master Suite: The master suite includes a spacious bedroom and a private en-suite bathroom with a large soaking tub.
  • Convenient Utility Room: A separate utility room provides a dedicated space for laundry.

Room Dimensions

Room Dimensions
Living Room 18'-0" x 12'-10"
Dining Room 10'-0" x 12'-10"
Kitchen 10'-10" x 12'-10"
Master Bedroom 13'-0" x 12'-10"
Bedroom 2 9'-4" x 12'-10"
Bedroom 3 10'-8" x 9'-4"

Exterior Design

The Cloverdale features a charming exterior with a mix of materials and a prominent garage that creates attractive and modern curb appeal.

  • Covered Front Porch: A welcoming covered porch provides a sheltered entry and a cozy spot to relax.
  • Prominent Garage: The attached two-car garage features its own large gabled roofline, making it a key and attractive element of the home's overall design.
  • Stone & Siding Accents: The rendering shows an elegant combination of classic siding with a stone accent on the garage front, adding texture and visual interest.

Available Options & Upgrades

Personalize your Cloverdale home with a wide range of available options and upgrades to perfectly match your needs and style.

  • Gourmet Kitchen Packages: Upgrade your kitchen with premium options like granite countertops, a tile backsplash, or an expanded island with seating.
  • Luxury Bathroom Finishes: Customize your bathrooms with upgraded vanities, premium fixtures, and a tiled shower in the master suite.
  • Exterior Material Upgrades: Choose from a wide array of siding styles and colors, or expand the stone or brick accents to other areas of the home for a custom look.
  • Foundation & Basement Options: The plan includes a stairway to a lower level, making it perfectly suited for a full basement foundation to maximize your storage and potential living space.

Why Choose Modular

Choosing a modular home from Tri-County Homes means embracing a modern, efficient, and high-quality building process. Our homes are constructed in a climate-controlled facility, which offers significant advantages over traditional on-site construction by protecting materials and allowing for meticulous quality control.

Quality Construction from the Ground Up

  • Structure: We use 2×10 floor joists and 2x6 exterior walls (16″ on center) for a stronger frame.
  • Roof System: The roof is constructed with engineered trusses and covered with lifetime architectural shingles.
  • Energy Efficiency: All homes come standard with insulated windows featuring low-E/Argon glass and insulation packages.

High-End Features Included as Standard

  • Kitchens: Our kitchens feature high-quality cabinetry with soft-close drawers and your choice of countertops.
  • Bathrooms: Bathrooms come complete with mirrors, towel racks, and high-quality single-piece tub/shower units.
  • Interior Finishes: We use high-quality interior doors and trim, and all closets include shelving.

Proudly Serving Our Local Communities

As a family-owned company since 1962, we have a long history of serving homeowners across Western PA. We are honored to build in the communities located within:

  • Allegheny County
  • Armstrong County
  • Beaver County
  • Butler County
  • Cambria County
  • Clarion County
  • Crawford County
  • Fayette County
  • Forest County
  • Greene County
  • Indiana County
  • Jefferson County
  • Lawrence County
  • Mercer County
  • Somerset County
  • Venango County
  • Warren County
  • Washington County
  • Westmoreland County
Jump Links
  • Floor Plan Overview
  • Specs & Dimensions
  • Interior Layout
  • Exterior Design
  • Available Options & Upgrades
  • Why Choose Modular
  • Build Area
  • Request Pricing
© Copyright 2025 Tri-County Homes. All Rights Reserved