Call Us Today! 1-800-540-1295 | info@TriCountyHomes.com

The Coghlan – Ranch Style Modular Home

A stunning ranch home that combines a smart, family-friendly layout with a sophisticated exterior.

The Coghlan is a stunning ranch home that combines a smart, family-friendly layout with a sophisticated exterior. This 1,456 sq. ft. plan offers all the convenience of single-story living with three bedrooms and two full bathrooms. The home features a popular split-bedroom design for privacy and a large, open living room that serves as the central gathering space. With its beautiful mix of stone and siding and an attached two-car garage, The Coghlan is a perfect blend of style and function.

Floor Plan Overview

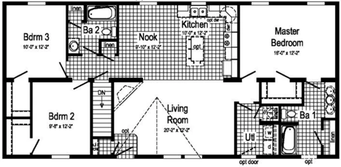
The Coghlan floor plan is expertly designed for modern living. The layout is centered around a large, welcoming living room, creating a perfect space for family time and entertaining guests. The highlight of the design is the split-bedroom configuration, which places the luxurious master suite on one side of the home for ultimate privacy, while the two secondary bedrooms are situated on the opposite side. This thoughtful separation of space makes it an ideal home for families.

Specs & Dimensions

The Coghlan offers a comfortable single-level layout within an efficient and attractive footprint.

Detail
Specification
Style Ranch
Square Footage 1,456
Bedrooms 3
Bathrooms 2
Dimensions 26' x 56'

Interior Layout

The interior of The Coghlan is designed to feel open and inviting, with a practical flow that maximizes both comfort and privacy.

  • Spacious Living Room: The large living room (20'-2" x 12'-2") is the heart of the home, offering ample space for relaxation and social gatherings.
  • Open Kitchen and Nook: The modern kitchen (10'-0" x 12'-2") is open to a sunny breakfast nook (9'-10" x 12'-2"), creating a bright and connected space for daily meals.
  • Private Master Suite: The expansive master bedroom (16'-0" x 12'-2") is a true retreat, featuring a large private bathroom with dual vanities and direct access to the utility room.
  • Split-Bedroom Design: Two additional bedrooms (9'-8" x 12'-2" and 10'-0" x 12'-2") are located in their own wing with a shared full bathroom, providing privacy for family or guests.

Room Dimensions

Room Dimensions
Living Room 20'-2" x 12'-2"
Kitchen 10'-0" x 12'-2"
Nook 9'-10" x 12'-2"
Master Bedroom 16'-0" x 12'-2"
Bedroom 2 9'-8" x 12'-2"
Bedroom 3 10'-0" x 12'-2"

Exterior Design

The Coghlan features a sophisticated exterior with a complex roofline and a beautiful mix of materials, creating exceptional curb appeal.

  • Mixed-Material Façade: The exterior showcases an elegant blend of stone, traditional siding, and decorative shake siding in the gables for a rich, custom look.
  • Complex Roofline: Multiple intersecting gables create a dynamic and visually interesting profile that stands out from a typical ranch.
  • Covered Front Porch: A welcoming covered front porch provides a sheltered entry and a charming spot to relax.
  • Attached Garage: The plan is designed to accommodate an attached two-car garage that integrates seamlessly with the home's aesthetic.

Available Options & Upgrades

Personalize your Coghlan home with a wide range of available options and upgrades to perfectly match your needs and style.

  • Gourmet Kitchen Packages: Upgrade your kitchen with premium options like granite countertops, a tile backsplash, or an expanded island with seating.
  • Luxury Bathroom Finishes: Customize your master bathroom with a fully tiled walk-in shower, a freestanding tub, or premium dual vanities.
  • Exterior Material Upgrades: Choose from a wide array of siding styles and colors, or expand the stone or brick accents to other areas of the home for a custom look.
  • Foundation & Basement Options: The plan includes a stairway to a lower level, making it perfectly suited for a full basement foundation to maximize your storage and potential living space.

Why Choose Modular

Choosing a modular home from Tri-County Homes means embracing a modern, efficient, and high-quality building process. Our homes are constructed in a climate-controlled facility, which offers significant advantages over traditional on-site construction by protecting materials and allowing for meticulous quality control.

Quality Construction from the Ground Up

  • Structure: We use 2×10 floor joists and 2x6 exterior walls (16″ on center) for a stronger frame.
  • Roof System: The roof is constructed with engineered trusses and covered with lifetime architectural shingles.
  • Energy Efficiency: All homes come standard with insulated windows featuring low-E/Argon glass and insulation packages.

High-End Features Included as Standard

  • Kitchens: Our kitchens feature high-quality cabinetry with soft-close drawers and your choice of countertops.
  • Bathrooms: Bathrooms come complete with mirrors, towel racks, and high-quality single-piece tub/shower units.
  • Interior Finishes: We use high-quality interior doors and trim, and all closets include shelving.

Where We Build

Tri-County Homes delivers and installs custom modular homes throughout Western Pennsylvania. Our primary build areas include the following counties:

  • Allegheny County
  • Armstrong County
  • Beaver County
  • Butler County
  • Cambria County
  • Clarion County
  • Crawford County
  • Fayette County
  • Forest County
  • Greene County
  • Indiana County
  • Jefferson County
  • Lawrence County
  • Mercer County
  • Somerset County
  • Venango County
  • Warren County
  • Washington County
  • Westmoreland County
Jump Links
  • Floor Plan Overview
  • Specs & Dimensions
  • Interior Layout
  • Exterior Design
  • Available Options & Upgrades
  • Why Choose Modular
  • Build Area
  • Request Pricing
© Copyright 2025 Tri-County Homes. All Rights Reserved