Call Us Today! 1-800-540-1295 | info@TriCountyHomes.com

The Hempstead – Ranch Style Modular Home

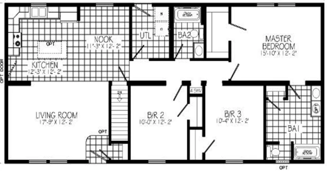
A charming and efficient ranch home featuring a popular split-bedroom layout.

The Hempstead is a charming and efficient ranch home featuring a popular split-bedroom layout. This 1,456 sq. ft. plan offers the ease of single-story living with three bedrooms and two full bathrooms. The design includes a spacious living room perfect for relaxing, which leads to an open-concept kitchen and breakfast nook. With its classic exterior and a floor plan designed for modern privacy, The Hempstead is a wonderful and practical choice for any family.

Floor Plan Overview

The Hempstead floor plan is expertly designed to provide both comfortable family gathering spaces and private retreats. The home’s layout is centered around a large living room, creating a welcoming hub for daily life. A highlight of the design is the split-bedroom configuration, which places the master suite on one side of the home for ultimate privacy, while the two secondary bedrooms are situated on the opposite side. This thoughtful separation of space makes it an ideal home for families and those who enjoy hosting guests.

Specs & Dimensions

The Hempstead offers a comfortable single-level layout within a classic and efficient rectangular footprint.

Detail
Specification
Style Ranch
Square Footage 1,456
Bedrooms 3
Bathrooms 2
Dimensions 26' x 56'

Interior Layout

The interior of The Hempstead is designed to feel open and inviting, with a practical flow that maximizes both comfort and privacy.

  • Spacious Living Room: The large living room (17'-9" x 12'-2") is the heart of the home, offering ample space for relaxation and social gatherings.
  • Open Kitchen and Nook: The modern kitchen (12'-3" x 12'-2") is open to a sunny breakfast nook (11'-3" x 12'-2"), creating a bright and connected space for daily meals.
  • Split-Bedroom Design: The private master bedroom (15'-10" x 12'-2") is located on one side of the home, while two additional bedrooms (10'-0" x 12'-2" and 10'-4" x 12'-2") are situated on the opposite side for privacy.
  • Private Master Suite: The expansive master suite includes a spacious bedroom and a private en-suite bathroom.
  • Convenient Utility Room: A separate utility room provides a dedicated space for laundry.

Room Dimensions

Room Dimensions
Living Room 17'-9" x 12'-2"
Kitchen 12'-3" x 12'-2"
Nook 11'-3" x 12'-2"
Master Bedroom 15'-10" x 12'-2"
Bedroom 2 10'-0" x 12'-2"
Bedroom 3 10'-4" x 12'-2"

Exterior Design

The Hempstead features a timeless ranch exterior with a charming covered porch and an integrated garage that creates a classic, welcoming curb appeal.

  • Covered Front Porch: A welcoming covered porch with a gabled roof provides a sheltered entry and a cozy spot to relax.
  • Attached Garage: The rendering shows the home with a two-car attached garage that blends seamlessly with the main roofline.
  • Gabled Accents: Multiple gabled rooflines over the entry and garage add pleasing architectural interest to the home's facade.

Available Options & Upgrades

Personalize your Hempstead home with a wide range of available options and upgrades to perfectly match your needs and style.

  • Gourmet Kitchen Packages: Upgrade your kitchen with premium options like granite countertops, a tile backsplash, or an expanded island with seating.
  • Luxury Bathroom Finishes: Customize your bathrooms with upgraded vanities, premium fixtures, and a tiled shower in the master suite.
  • Patio Door: Add an optional patio door in the breakfast nook to create a seamless connection to your backyard or a future deck.
  • Foundation & Basement Options: The plan includes a stairway to a lower level, making it perfectly suited for a full basement foundation to maximize your storage and potential living space.

Why Choose Modular

Choosing a modular home from Tri-County Homes means embracing a modern, efficient, and high-quality building process. Our homes are constructed in a climate-controlled facility, which offers significant advantages over traditional on-site construction by protecting materials and allowing for meticulous quality control.

Quality Construction from the Ground Up

  • Structure: We use 2×10 floor joists and 2x6 exterior walls (16″ on center) for a stronger frame.
  • Roof System: The roof is constructed with engineered trusses and covered with lifetime architectural shingles.
  • Energy Efficiency: All homes come standard with insulated windows featuring low-E/Argon glass and insulation packages.

High-End Features Included as Standard

  • Kitchens: Our kitchens feature high-quality cabinetry with soft-close drawers and your choice of countertops.
  • Bathrooms: Bathrooms come complete with mirrors, towel racks, and high-quality single-piece tub/shower units.
  • Interior Finishes: We use high-quality interior doors and trim, and all closets include shelving.

Modular Home Service Regions

Our dedicated team coordinates every aspect of your new home's delivery and setup. We provide comprehensive services to customers in:

  • Allegheny County
  • Armstrong County
  • Beaver County
  • Butler County
  • Cambria County
  • Clarion County
  • Crawford County
  • Fayette County
  • Forest County
  • Greene County
  • Indiana County
  • Jefferson County
  • Lawrence County
  • Mercer County
  • Somerset County
  • Venango County
  • Warren County
  • Washington County
  • Westmoreland County
Jump Links
  • Floor Plan Overview
  • Specs & Dimensions
  • Interior Layout
  • Exterior Design
  • Available Options & Upgrades
  • Why Choose Modular
  • Build Area
  • Request Pricing
© Copyright 2025 Tri-County Homes. All Rights Reserved