Call Us Today! 1-800-540-1295 | info@TriCountyHomes.com

The Herreshoff – Ranch Style Modular Home

A classic ranch home that offers a popular split-bedroom layout in an efficient and affordable package.

The Herreshoff is a classic ranch home that offers a popular split-bedroom layout in an efficient and affordable package. This 1,352 sq. ft. plan provides all the convenience of single-story living with three bedrooms and two full bathrooms. The design features a spacious living room and an open-concept kitchen and nook area perfect for family life. With its attractive exterior and a floor plan designed for modern privacy, The Herreshoff is a wonderful choice for any family.

Floor Plan Overview

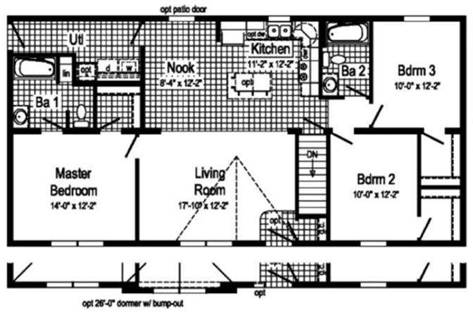
The Herreshoff floor plan is expertly designed for comfortable family living. Its split-bedroom configuration provides a private and quiet master suite on one end of the home, completely separate from the two secondary bedrooms on the opposite end. The central living area is open and inviting, with a large living room that serves as the main hub for daily activities. This popular layout offers a perfect balance of open social spaces and private, quiet retreats.

Specs & Dimensions

The Herreshoff offers a comfortable single-level layout within a classic and efficient rectangular footprint.

Detail
Specification
Style Ranch
Square Footage 1,352
Bedrooms 3
Bathrooms 2
Dimensions 26' x 52'

Interior Layout

The interior of The Herreshoff is designed to feel open and inviting, with a practical flow that maximizes both comfort and privacy.

  • Spacious Living Room: The large living room (17'-10" x 12'-2") is the heart of the home, offering ample space for relaxation and social gatherings.
  • Open Kitchen and Nook: The modern kitchen (11'-2" x 12'-2") is open to a sunny breakfast nook (8'-4" x 12'-2"), creating a bright and connected space for daily meals.
  • Split-Bedroom Design: The private master bedroom (14'-0" x 12'-2") is located on one side of the home, while two additional bedrooms (both 10'-0" x 12'-2") are situated on the opposite side for privacy.
  • Private Master Suite: The master suite includes a spacious bedroom and a private en-suite bathroom.
  • Convenient Utility Room: A separate utility room provides a dedicated space for laundry.

Room Dimensions

Room Dimensions
Living Room 17'-10" x 12'-2"
Kitchen 11'-2" x 12'-2"
Nook 8'-4" x 12'-2"
Master Bedroom 14'-0" x 12'-2"
Bedroom 2 10'-0" x 12'-2"
Bedroom 3 10'-0" x 12'-2"

Exterior Design

The Herreshoff features a beautiful exterior with a mix of materials and an integrated garage that creates attractive curb appeal.

  • Stone & Siding Accents: The rendering shows an elegant combination of classic siding with a stone accent on the front, adding texture and visual interest.
  • Attached Garage: The home is designed with a two-car attached garage that blends seamlessly with the main roofline.
  • Gabled Entry: A prominent gabled roof over the main entry creates a pleasing focal point for the home's facade.

Available Options & Upgrades

Personalize your Herreshoff home with a wide range of available options and upgrades to perfectly match your needs and style.

  • Dormer & Bump-Out: The plan includes an option for a 26-foot dormer with a bump-out, adding architectural character and more light to the living space.
  • Gourmet Kitchen Packages: Upgrade your kitchen with premium options like granite countertops, a tile backsplash, or an expanded island with seating.
  • Patio Door: Add an optional patio door in the breakfast nook to create a seamless connection to your backyard or a future deck.
  • Foundation & Basement Options: The plan includes a stairway to a lower level, making it perfectly suited for a full basement foundation to maximize your storage and potential living space.

Why Choose Modular

Choosing a modular home from Tri-County Homes means embracing a modern, efficient, and high-quality building process. Our homes are constructed in a climate-controlled facility, which offers significant advantages over traditional on-site construction by protecting materials and allowing for meticulous quality control.

Quality Construction from the Ground Up

  • Structure: We use 2×10 floor joists and 2x6 exterior walls (16″ on center) for a stronger frame.
  • Roof System: The roof is constructed with engineered trusses and covered with lifetime architectural shingles.
  • Energy Efficiency: All homes come standard with insulated windows featuring low-E/Argon glass and insulation packages.

High-End Features Included as Standard

  • Kitchens: Our kitchens feature high-quality cabinetry with soft-close drawers and your choice of countertops.
  • Bathrooms: Bathrooms come complete with mirrors, towel racks, and high-quality single-piece tub/shower units.
  • Interior Finishes: We use high-quality interior doors and trim, and all closets include shelving.

Your Local Pennsylvania Builder

From bustling suburbs to quiet rural properties, Tri-County Homes has the local knowledge to manage your project. We are proud to serve the following Western PA counties:

  • Allegheny County
  • Armstrong County
  • Beaver County
  • Butler County
  • Cambria County
  • Clarion County
  • Crawford County
  • Fayette County
  • Forest County
  • Greene County
  • Indiana County
  • Jefferson County
  • Lawrence County
  • Mercer County
  • Somerset County
  • Venango County
  • Warren County
  • Washington County
  • Westmoreland County
Jump Links
  • Floor Plan Overview
  • Specs & Dimensions
  • Interior Layout
  • Exterior Design
  • Available Options & Upgrades
  • Why Choose Modular
  • Build Area
  • Request Pricing
© Copyright 2025 Tri-County Homes. All Rights Reserved