Call Us Today! 1-800-540-1295 | info@TriCountyHomes.com

The Jasper - Ranch Style Modular Home

A spacious and impressive ranch home designed around a massive central living room.

The Jasper is a spacious and impressive ranch home designed around a massive central living room. This 1,584 sq. ft. plan offers all the convenience of single-story living with three bedrooms and two full bathrooms. The home features a popular split-bedroom layout for maximum privacy in the master suite, while the huge living room provides an incredible hub for family life and entertaining. With a beautiful exterior and a highly functional floor plan, The Jasper is an outstanding choice for modern family living.

Floor Plan Overview

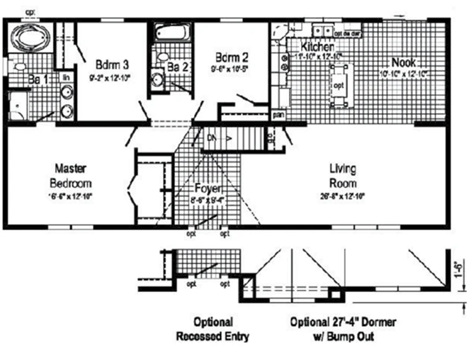
The Jasper floor plan is expertly designed for those who love a grand, open living space. The layout is dominated by an enormous living room that creates a dramatic and welcoming first impression right from the formal foyer. For privacy and function, the home features a split-bedroom configuration, placing the luxurious master suite on one end of the home, completely separate from the two secondary bedrooms on the other. This popular design offers a perfect balance between an impressive, open social hub and quiet, private retreats.

Specs & Dimensions

The Jasper offers a spacious single-level layout with a smart and efficient footprint.

Detail
Specification
Style Ranch
Square Footage 1,584
Bedrooms 3
Bathrooms 2
Dimensions 28' x 58'

Interior Layout

The interior of The Jasper is designed to feel exceptionally spacious and bright, with a practical flow that maximizes comfort and usability.

  • Massive Living Room: The signature feature of this home is the huge 28'-8" x 12'-10" living room, providing an incredible amount of flexible space for furniture, family activities, and entertaining.
  • Open Kitchen and Nook: A well-appointed kitchen (11'-10" x 12'-10") is open to a sunny breakfast nook (10'-10" x 12'-10"), creating a large, connected area for daily meals.
  • Split-Bedroom Design: The private master bedroom (16'-6" x 12'-10") is located on one side of the home, while two additional bedrooms (9'-6" x 10'-8" and 9'-2" x 12'-10") are situated on the opposite side for privacy.
  • Luxurious Master Suite: The master suite includes a spacious bedroom and a private en-suite bathroom with a large soaking tub and separate shower.
  • Formal Foyer: A dedicated 8'-8" x 9'-4" foyer provides a formal and welcoming entry point into the home.

Room Dimensions

Room Dimensions
Living Room 28'-8" x 12'-10"
Kitchen 11'-10" x 12'-10"
Nook 10'-10" x 12'-10"
Master Bedroom 16'-6" x 12'-10"
Bedroom 2 9'-6" x 10'-8"
Bedroom 3 9'-2" x 12'-10"
Foyer 8'-8" x 9'-4"

Exterior Design

The Jasper features a sophisticated exterior with a beautiful mix of materials and multiple gables that create upscale curb appeal.

  • Stone & Siding Exterior: The rendering shows an elegant combination of classic siding with a stone wainscot on the front, adding rich texture and visual interest.
  • Multiple Gables & Dormers: A series of gables and aesthetic dormers create a dynamic and visually interesting profile that stands out from a typical ranch.
  • Recessed Entry: The home can be designed with a recessed entry, as shown in the rendering, for a more protected and architecturally distinct look.

Available Options & Upgrades

Personalize your Jasper home with a wide range of available options and upgrades to perfectly match your needs and style.

  • Optional Dormer & Bump-Out: The plan includes an option for a 27-foot dormer with a bump-out, adding architectural character and more light to the living space.
  • Recessed Entry: Choose the optional recessed entry to create a more formal and sheltered front porch area.
  • Gourmet Kitchen Packages: Upgrade your kitchen with premium options like granite countertops, a tile backsplash, or an expanded island with seating.
  • Foundation & Basement Options: The plan includes a stairway to a lower level, making it perfectly suited for a full basement foundation to maximize your storage and potential living space.

Why Choose Modular

Choosing a modular home from Tri-County Homes means embracing a modern, efficient, and high-quality building process. Our homes are constructed in a climate-controlled facility, which offers significant advantages over traditional on-site construction by protecting materials and allowing for meticulous quality control.

Quality Construction from the Ground Up

  • Structure: We use 2×10 floor joists and 2x6 exterior walls (16″ on center) for a stronger frame.
  • Roof System: The roof is constructed with engineered trusses and covered with lifetime architectural shingles.
  • Energy Efficiency: All homes come standard with insulated windows featuring low-E/Argon glass and insulation packages.

High-End Features Included as Standard

  • Kitchens: Our kitchens feature high-quality cabinetry with soft-close drawers and your choice of countertops.
  • Bathrooms: Bathrooms come complete with mirrors, towel racks, and high-quality single-piece tub/shower units.
  • Interior Finishes: We use high-quality interior doors and trim, and all closets include shelving.

Construction & Delivery Areas

Our expertise in modular home construction extends throughout the beautiful landscapes of Western PA. Let us build your dream home in any of the following counties:

  • Allegheny County
  • Armstrong County
  • Beaver County
  • Butler County
  • Cambria County
  • Clarion County
  • Crawford County
  • Fayette County
  • Forest County
  • Greene County
  • Indiana County
  • Jefferson County
  • Lawrence County
  • Mercer County
  • Somerset County
  • Venango County
  • Warren County
  • Washington County
  • Westmoreland County
Jump Links
  • Floor Plan Overview
  • Specs & Dimensions
  • Interior Layout
  • Exterior Design
  • Available Options & Upgrades
  • Why Choose Modular
  • Build Area
  • Request Pricing
© Copyright 2025 Tri-County Homes. All Rights Reserved