Call Us Today! 1-800-540-1295 | info@TriCountyHomes.com

The Kimball - Ranch Style Modular Home

A classic and affordable ranch home that offers a simple, yet highly functional layout.

The Kimball is a classic and affordable ranch home that offers a simple, yet highly functional layout. This 1,040 sq. ft. plan provides all the convenience of single-story living with three bedrooms and one full bathroom. The design features a spacious living room at the front of the home and a large, open-concept kitchen and dining area at the back. For those seeking a practical and budget-friendly family home, The Kimball is an excellent choice.

Floor Plan Overview

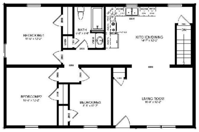
The Kimball floor plan is designed for traditional comfort and efficiency. The layout welcomes you into a large living room, creating a natural gathering spot for the family. The open-concept kitchen and dining area at the rear of the home provide a bright and functional space for daily meals. All three bedrooms are located along one side of the home, sharing a conveniently located full bathroom. This simple and effective layout makes the most of its square footage.

Specs & Dimensions

The Kimball offers a comfortable single-level layout within a classic and efficient rectangular footprint.

Detail
Specification
Style Ranch
Square Footage 1,040
Bedrooms 3
Bathrooms 1
Dimensions 26' x 40'

Interior Layout

The interior of The Kimball is designed to be practical and comfortable, with generous room sizes and a clear, functional flow.

  • Spacious Living Room: The large 16'-9" x 12'-2" living room is the heart of the home, offering ample space for family relaxation.
  • Open Kitchen and Dining: The kitchen and dining area is a large, combined space measuring 14'-7" x 12'-2", perfect for family meals.
  • Comfortable Bedrooms: This plan includes three bedrooms. Bedroom #1 measures 11'-0" x 12'-2", Bedroom #2 is 10'-9" x 12'-2", and Bedroom #3 is 8'-8" x 12'-2".
  • Central Bathroom: A full bathroom is conveniently located in the central hallway, easily accessible from all three bedrooms and the main living area.

Room Dimensions

Room Dimensions
Living Room 16'-9" x 12'-2"
Kitchen / Dining 14'-7" x 12'-2"
Bedroom #1 11'-0" x 12'-2"
Bedroom #2 10'-9" x 12'-2"
Bedroom #3 8'-8" x 12'-2"
Bathroom 9'-3" x 5'-8"

Exterior Design

The Kimball features a simple and timeless ranch exterior with a charming covered entry that creates a classic, welcoming curb appeal.

  • Classic Ranch Profile: The home's single-story profile and low-pitched roof are hallmarks of traditional ranch design.
  • Covered Entry: A small, covered porch provides a sheltered entry point to the home.
  • Shake Siding: The rendering shows classic shake-style siding, which adds texture and character to the home's exterior.

Available Options & Upgrades

Personalize your Kimball home with a wide range of available options and upgrades to perfectly match your needs and style.

  • Kitchen Packages: Upgrade your kitchen with options like granite countertops, a tile backsplash, or an island for additional workspace.
  • Bathroom Finishes: Customize your bathroom with upgraded vanities, premium fixtures, and different flooring options.
  • Exterior Material Upgrades: Choose from a wide array of siding styles and colors, or add a stone or brick wainscot to the front of the home for a custom look.
  • Foundation & Basement Options: The plan includes a stairway to a lower level, making it perfectly suited for a full basement foundation to maximize your storage and potential living space.

Why Choose Modular

Choosing a modular home from Tri-County Homes means embracing a modern, efficient, and high-quality building process. Our homes are constructed in a climate-controlled facility, which offers significant advantages over traditional on-site construction by protecting materials and allowing for meticulous quality control.

Quality Construction from the Ground Up

  • Structure: We use 2×10 floor joists and 2x6 exterior walls (16″ on center) for a stronger frame.
  • Roof System: The roof is constructed with engineered trusses and covered with lifetime architectural shingles.
  • Energy Efficiency: All homes come standard with insulated windows featuring low-E/Argon glass and insulation packages.

High-End Features Included as Standard

  • Kitchens: Our kitchens feature high-quality cabinetry with soft-close drawers and your choice of countertops.
  • Bathrooms: Bathrooms come complete with mirrors, towel racks, and high-quality single-piece tub/shower units.
  • Interior Finishes: We use high-quality interior doors and trim, and all closets include shelving.

Tri-County Homes Build Locations

Wondering if we build in your area? Our team provides complete modular home construction services across an extensive portion of Western Pennsylvania, including:

  • Allegheny County
  • Armstrong County
  • Beaver County
  • Butler County
  • Cambria County
  • Clarion County
  • Crawford County
  • Fayette County
  • Forest County
  • Greene County
  • Indiana County
  • Jefferson County
  • Lawrence County
  • Mercer County
  • Somerset County
  • Venango County
  • Warren County
  • Washington County
  • Westmoreland County
Jump Links
  • Floor Plan Overview
  • Specs & Dimensions
  • Interior Layout
  • Exterior Design
  • Available Options & Upgrades
  • Why Choose Modular
  • Build Area
  • Request Pricing
© Copyright 2025 Tri-County Homes. All Rights Reserved