Call Us Today! 1-800-540-1295 | info@TriCountyHomes.com

The Scotsdale - Ranch Style Modular Home

A beautifully designed ranch that combines a popular split-bedroom layout with a luxurious master suite.

The Scotsdale is a beautifully designed ranch that combines a popular split-bedroom layout with a luxurious master suite. This 1,531 sq. ft. plan offers all the convenience of single-story living with three bedrooms and two full bathrooms. The home is designed around a spacious and open living area that flows into the kitchen and nook, creating a welcoming environment for family and friends. With a sophisticated exterior and a floor plan that prioritizes comfort and privacy, The Scotsdale is an exceptional choice.

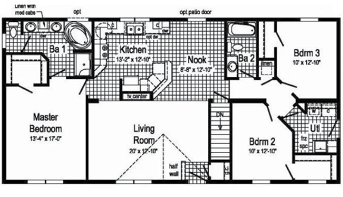
The Scotsdale Floor Plan

The Scotsdale floor plan is expertly designed for modern family life, offering a perfect balance of open social spaces and private, quiet retreats. The highlight of the layout is its split-bedroom configuration, which provides a private and quiet master suite on one end of the home, completely separate from the two secondary bedrooms on the opposite end. The central living area is open and inviting, with a large living room that serves as the main hub for daily activities.

Specs & Dimensions

The Scotsdale offers a comfortable single-level layout within a classic and efficient rectangular footprint.

Detail
Specification
Style Ranch
Square Footage 1,531
Bedrooms 3
Bathrooms 2
Dimensions 28' x 56'

Interior Layout

The interior of The Scotsdale is designed to feel open and spacious, with an intelligent flow that enhances its comfortable layout.

  • Spacious Living Room: The large living room serves as the heart of the home, featuring a built-in TV center and providing ample space for family gatherings.
  • Open Kitchen and Nook: The well-designed kitchen is open to a sunny breakfast nook, creating a bright and connected space for daily meals.
  • Split-Bedroom Design: The private master bedroom is located on one side of the home, while two additional bedrooms are situated on the opposite side for privacy.
  • Luxurious Master Suite: The master suite is a true retreat, featuring a spacious bedroom and an exceptionally large en-suite bathroom with a separate soaking tub and shower.
  • Convenient Utility Room: A separate utility room provides a dedicated space for laundry.

Room Dimensions

Room Dimensions
Living Room 20'-0" x 12'-10"
Kitchen 13'-2" x 12'-10"
Nook 8'-8" x 12'-10"
Master Bedroom 13'-4" x 17'-0"
Bedroom 2 10'-0" x 12'-10"
Bedroom 3 10'-0" x 12'-10"

Exterior Design

The Scotsdale features a sophisticated exterior with a beautiful mix of materials and multiple gables that create exceptional curb appeal.

  • Mixed-Material Façade: The exterior showcases an elegant blend of stone, traditional siding, and decorative shake siding in the gables for a rich, custom look.
  • Multiple Gables: A series of gables on the roofline adds architectural interest and character to the home's facade.
  • Attached Garage: The home is designed with a two-car attached garage that integrates seamlessly into the roofline.

Available Options & Upgrades

Personalize your Scotsdale home with a wide range of available options and upgrades to perfectly match your needs and style.

  • Gourmet Kitchen Packages: Upgrade your kitchen with premium options like granite countertops, a tile backsplash, or an expanded island with seating.
  • Luxury Bathroom Finishes: Customize your bathrooms with upgraded vanities, premium fixtures, and a tiled shower in the master suite.
  • Patio Door: Add an optional patio door in the breakfast nook to create a seamless connection to your backyard or a future deck.
  • Foundation & Basement Options: The plan includes a stairway to a lower level, making it perfectly suited for a full basement foundation to maximize your storage and potential living space.

Why Choose Modular

Choosing a modular home from Tri-County Homes means embracing a modern, efficient, and high-quality building process. Our homes are constructed in a climate-controlled facility, which offers significant advantages over traditional on-site construction by protecting materials and allowing for meticulous quality control.

Quality Construction from the Ground Up

  • Structure: We use 2×10 floor joists and 2x6 exterior walls (16″ on center) for a stronger frame.
  • Roof System: The roof is constructed with engineered trusses and covered with lifetime architectural shingles.
  • Energy Efficiency: All homes come standard with insulated windows featuring low-E/Argon glass and insulation packages.

High-End Features Included as Standard

  • Kitchens: Our kitchens feature high-quality cabinetry with soft-close drawers and your choice of countertops.
  • Bathrooms: Bathrooms come complete with mirrors, towel racks, and high-quality single-piece tub/shower units.
  • Interior Finishes: We use high-quality interior doors and trim, and all closets include shelving.

Building Across Western PA

Your location is no obstacle. We specialize in building and delivering high-quality modular homes to a wide range of locations, including these Pennsylvania counties:

  • Allegheny County
  • Armstrong County
  • Beaver County
  • Butler County
  • Cambria County
  • Clarion County
  • Crawford County
  • Fayette County
  • Forest County
  • Greene County
  • Indiana County
  • Jefferson County
  • Lawrence County
  • Mercer County
  • Somerset County
  • Venango County
  • Warren County
  • Washington County
  • Westmoreland County
Jump Links
  • The Scotsdale Floor Plan
  • Specs & Dimensions
  • Interior Layout
  • Exterior Design
  • Available Options & Upgrades
  • Why Choose Modular
  • Build Area
  • Request Pricing
© Copyright 2025 Tri-County Homes. All Rights Reserved