Call Us Today! 1-800-540-1295 | info@TriCountyHomes.com

The Somerset – Ranch Style Modular Home

A classic ranch home featuring a highly efficient and popular split-bedroom layout.

The Somerset is a classic ranch home featuring a highly efficient and popular split-bedroom layout. This 1,320 sq. ft. plan offers all the convenience of single-story living with three bedrooms and two full bathrooms. The home is designed for practical family life, with a spacious living room, a large dining room, and a well-appointed kitchen. With its simple, timeless exterior and a floor plan that maximizes space, The Somerset is a fantastic and affordable choice for any family.

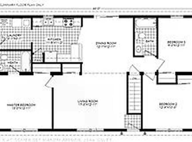
The Somerset Floor Plan

The Somerset floor plan is designed for comfort and privacy. Its split-bedroom configuration places the master suite on one end of the home, completely separate from the two secondary bedrooms on the opposite end. The central living area features a large living room and a distinct dining room that flows into the kitchen, providing a perfect balance of open feel and defined spaces. This popular layout is ideal for families who want a quiet owner's retreat separate from the kids' rooms.

Specs & Dimensions

The Somerset offers a comfortable single-level layout within a classic and efficient rectangular footprint.

Detail
Specification
Style Ranch
Square Footage 1,320
Bedrooms 3
Bathrooms 2
Dimensions Varies by configuration

Interior Layout

The interior of The Somerset is designed to be bright and functional, with a practical flow that makes the most of its square footage.

  • Defined Living & Dining: The home features a large living room and an adjacent dining room, providing ample space for family relaxation and meals.
  • Efficient Kitchen: The well-designed kitchen is located next to the dining room and offers a smart, functional workspace.
  • Split-Bedroom Design: The private master bedroom is located on one side of the home, while two additional bedrooms are situated on the opposite side for privacy.
  • Private Master Suite: The master suite includes a spacious bedroom and a private en-suite bathroom.
  • Convenient Laundry: A dedicated laundry room is centrally located for easy access.

Room Dimensions

Room Dimensions
Living Room 17'-0" x 12'-11"
Dining Room 12'-11" x 12'-11"
Kitchen 11'-10" x 11'-2"
Master Bedroom 15'-0" x 12'-11"
Bedroom 2 12'-6" x 10'-8"
Bedroom 3 10'-2" x 12'-11"

Exterior Design

The Somerset features a simple and timeless ranch exterior with a clean, classic look that is both attractive and low-maintenance.

  • Classic Ranch Profile: The home's single-story profile and simple gabled roof are hallmarks of traditional, efficient design.
  • Siding and Shutters: The combination of low-maintenance siding and traditional shutters gives the home a timeless, established look.
  • Garage Options: This floor plan can be easily paired with an attached or detached two-car garage for added convenience and storage.

Available Options & Upgrades

Personalize your Somerset home with a wide range of available options and upgrades to perfectly match your needs and style.

  • Gourmet Kitchen Packages: Upgrade your kitchen with premium options like granite countertops, a tile backsplash, or an island for additional workspace.
  • Luxury Bathroom Finishes: Customize your bathrooms with upgraded vanities, premium fixtures, and a tiled shower.
  • Exterior Material Upgrades: Choose from a wide array of siding styles and colors, or add a stone or brick wainscot to the front of the home for a custom look.
  • Foundation & Basement Options: The plan includes a stairway to a lower level, making it perfectly suited for a full basement foundation to maximize your storage and potential living space.

Why Choose Modular

Choosing a modular home from Tri-County Homes means embracing a modern, efficient, and high-quality building process. Our homes are constructed in a climate-controlled facility, which offers significant advantages over traditional on-site construction by protecting materials and allowing for meticulous quality control.

Quality Construction from the Ground Up

  • Structure: We use 2×10 floor joists and 2x6 exterior walls (16″ on center) for a stronger frame.
  • Roof System: The roof is constructed with engineered trusses and covered with lifetime architectural shingles.
  • Energy Efficiency: All homes come standard with insulated windows featuring low-E/Argon glass and insulation packages.

High-End Features Included as Standard

  • Kitchens: Our kitchens feature high-quality cabinetry with soft-close drawers and your choice of countertops.
  • Bathrooms: Bathrooms come complete with mirrors, towel racks, and high-quality single-piece tub/shower units.
  • Interior Finishes: We use high-quality interior doors and trim, and all closets include shelving.

Your Local Pennsylvania Builder

From bustling suburbs to quiet rural properties, Tri-County Homes has the local knowledge to manage your project. We are proud to serve the following Western PA counties:

  • Allegheny County
  • Armstrong County
  • Beaver County
  • Butler County
  • Cambria County
  • Clarion County
  • Crawford County
  • Fayette County
  • Forest County
  • Greene County
  • Indiana County
  • Jefferson County
  • Lawrence County
  • Mercer County
  • Somerset County
  • Venango County
  • Warren County
  • Washington County
  • Westmoreland County
Jump Links
  • The Somerset Floor Plan
  • Specs & Dimensions
  • Interior Layout
  • Exterior Design
  • Available Options & Upgrades
  • Why Choose Modular
  • Tri-County Homes Build Areas
  • Request Pricing
© Copyright 2025 Tri-County Homes. All Rights Reserved