Call Us Today! 1-800-540-1295 | info@TriCountyHomes.com

The Charlotte - Two Story Modular Home

A luxurious two-story home designed to provide unparalleled comfort and privacy, with a dedicated private bathroom for every bedroom.

The Charlotte is a luxurious two-story home designed to provide unparalleled comfort and privacy, with the rare feature of a dedicated private bathroom for every bedroom. This expansive 2,840 sq. ft. floor plan includes three bedroom suites, three-and-a-half bathrooms, and a first-floor master for ultimate convenience. The main floor is an entertainer's dream, with a two-story foyer, a formal dining room, and a massive family room. With an upstairs library and an elegant wrap-around porch, The Charlotte is a truly exceptional home.

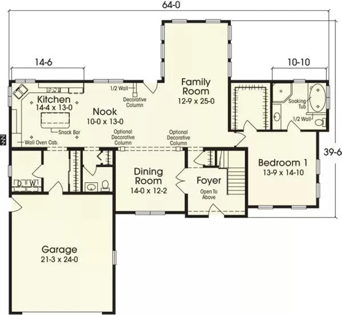
The Charlotte Floor Plan

The Charlotte floor plan is masterfully designed for multi-generational living or for families who value personal space. The first floor is dedicated to convenient living for the homeowners with a luxurious master suite, while the grand, open living spaces are perfect for hosting gatherings. The two-story foyer creates a stunning first impression. Upstairs, two additional bedroom suites - each with its own full bathroom - provide a private retreat for children or guests, along with a flexible library space.

Specs & Dimensions

The Charlotte offers an expansive two-story layout packed with luxurious features.

Detail
Specification
Style Two Story
Square Footage 2,840
Bedrooms 3
Bathrooms 3.5
Dimensions 64'-0" x 39'-6"
Garage 2-Car (21'-3" x 24'-0")

Interior Layout

The interior of The Charlotte is designed to feel both grand and welcoming on the first floor, and private and comfortable on the second.

First Floor

  • First-Floor Master Suite: The private master bedroom (13'-9" x 14'-10") is conveniently located on the main floor and includes a large walk-in closet and a spa-like en-suite bathroom with a soaking tub.
  • Two-Story Foyer: A dramatic foyer that is open to the floor above creates a grand and welcoming entrance.
  • Spacious Family Room: The massive 12'-9" x 25'-0" family room is the heart of the home, offering incredible flexibility for furniture and entertaining.
  • Kitchen and Nook: The modern kitchen (14'-4" x 13'-0") features a snack bar and is open to a sunny breakfast nook (10'-0" x 13'-0").
  • Formal Dining Room: A separate 14'-0" x 12'-2" dining room offers an elegant space for hosting dinner parties.

Second Floor

  • Upstairs Bedroom Suites: The second floor features two large bedroom suites, each with its own private, full bathroom, offering ultimate comfort and privacy.
  • Library/Bonus Room: A versatile 13'-9" x 8'-5" library is located on the second floor, perfect for a home office, study, or quiet reading area.

Room Dimensions

Room Dimensions
Family Room 12'-9" x 25'-0"
Dining Room 14'-0" x 12'-2"
Kitchen 14'-4" x 13'-0"
Nook 10'-0" x 13'-0"
Bedroom 1 (Master) 13'-9" x 14'-10"
Bedroom 2 13'-9" x 15'-10"
Bedroom 3 13'-6" x 13'-6"
Library 13'-9" x 8'-5"

Exterior Design

The Charlotte features a stately two-story exterior with a charming wrap-around porch and an integrated garage that creates a timeless, welcoming curb appeal.

  • Wrap-Around Porch: An elegant covered porch wraps around the front of the home, providing ample space for outdoor relaxation and adding classic charm.
  • Attached Garage: The home is designed with a two-car attached garage that offers convenience and adds to the home's substantial presence.
  • Multiple Gables & Shake Accents: A series of gables, accented with decorative shake siding, creates a dynamic and sophisticated front facade.

Available Options & Upgrades

Personalize your Charlotte home with a wide range of available options and upgrades to perfectly match your needs and style.

  • Gourmet Kitchen Packages: Upgrade your kitchen with premium options like granite countertops, a wall oven cabinet, or custom appliances.
  • Luxury Bathroom Finishes: Customize the multiple en-suite bathrooms with fully tiled walk-in showers, upgraded vanities, or premium fixtures.
  • Decorative Columns: Add optional decorative columns between the nook and family room to create an elegant sense of separation.
  • Foundation & Basement Options: Select the right foundation for your property, whether it's a standard slab, a crawlspace, or a full basement to maximize your storage and potential living space.

Why Choose Modular

Choosing a modular home from Tri-County Homes means embracing a modern, efficient, and high-quality building process. Our homes are constructed in a climate-controlled facility, which offers significant advantages over traditional on-site construction by protecting materials and allowing for meticulous quality control.

Quality Construction from the Ground Up

  • Structure: We use 2×10 floor joists and 2x6 exterior walls (16″ on center) for a stronger frame.
  • Roof System: The roof is constructed with engineered trusses and covered with lifetime architectural shingles.
  • Energy Efficiency: All homes come standard with insulated windows featuring low-E/Argon glass and insulation packages.

High-End Features Included as Standard

  • Kitchens: Our kitchens feature high-quality cabinetry with soft-close drawers and your choice of countertops.
  • Bathrooms: Bathrooms come complete with mirrors, towel racks, and high-quality single-piece tub/shower units.
  • Interior Finishes: We use high-quality interior doors and trim, and all closets include shelving.

Our Western Pennsylvania Service Area

With deep roots in the region, Tri-County Homes is a proud Western Pennsylvania builder. We are dedicated to constructing quality modular homes for our neighbors in the following counties:

  • Allegheny County
  • Armstrong County
  • Beaver County
  • Butler County
  • Cambria County
  • Clarion County
  • Crawford County
  • Fayette County
  • Forest County
  • Greene County
  • Indiana County
  • Jefferson County
  • Lawrence County
  • Mercer County
  • Somerset County
  • Venango County
  • Warren County
  • Washington County
  • Westmoreland County
Jump Links
  • The Charlotte Floor Plan
  • Specs & Dimensions
  • Interior Layout
  • Exterior Design
  • Available Options & Upgrades
  • Why Choose Modular
  • Tri-County Homes Build Areas
  • Request Pricing
{/exp:channel:entries}
© Copyright 2025 Tri-County Homes. All Rights Reserved