Call Us Today! 1-800-540-1295 | info@TriCountyHomes.com

The Elsinor - Two Story Modular Home

A classic two-story home designed for a large and growing family, featuring four bedrooms and two-and-a-half bathrooms.

The Elsinor is a classic two-story home designed for a large and growing family, featuring four bedrooms and two-and-a-half bathrooms. This 1,968 sq. ft. floor plan offers a perfect blend of formal and casual living spaces on the first floor, including a living room and a separate family room that is open to the eat-in kitchen. With all four bedrooms located privately on the second floor, The Elsinor provides an ideal layout for families who need plenty of space.

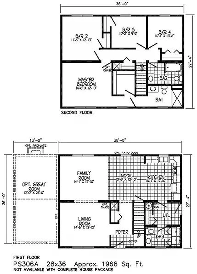
The Elsinor Floor Plan

The Elsinor floor plan is expertly designed for both daily family life and entertaining. The first floor features an open-concept family room, nook, and kitchen area that creates a large, connected hub for casual gatherings. A separate, formal living room provides a quieter space for guests or relaxation. The second floor serves as a private family retreat, with all four bedrooms, including the master suite, and two full bathrooms located upstairs.

Specs & Dimensions

The Elsinor offers an expansive two-story layout with plenty of room for a large family.

Detail
Specification
Style Two Story
Square Footage 1,968
Bedrooms 4
Bathrooms 2.5
Dimensions 28' x 36'

Interior Layout

The interior of The Elsinor is designed to be both welcoming and highly functional, with distinct zones for social and private activities across two floors.

First Floor

  • Dual Living Spaces: This home features both a formal living room (14'-8" x 12'-10") and a separate family room (14'-1" x 12'-10"), offering excellent flexibility for any occasion.
  • Open Eat-in Kitchen: The modern kitchen is open to a breakfast nook, creating a large, combined space for cooking and casual dining.
  • Convenient Half-Bath: A half-bath and laundry room are conveniently located on the first floor.

Second Floor

  • Upstairs Bedrooms: All four bedrooms are located on the second floor, creating a quiet and private family wing.
  • Private Master Suite: The master bedroom (14'-8" x 12'-10") features its own private en-suite bathroom.
  • Additional Bedrooms: Three more comfortable bedrooms provide plenty of space for family and guests, sharing a second full bathroom.

Room Dimensions

Room Dimensions
Living Room 14'-8" x 12'-10"
Family Room 14'-1" x 12'-10"
Kitchen 10'-6" x 12'-10"
Nook 10'-6" x 12'-10"
Master Bedroom 14'-8" x 12'-10"
Bedroom 2 11'-8" x 12'-10"
Bedroom 3 10'-2" x 9'-2"
Bedroom 4 10'-0" x 10'-6"

Exterior Design

The Elsinor features a stately and traditional two-story exterior with a classic colonial profile that is always in style.

  • Classic Colonial Style: The home's two-story profile with symmetrical windows and a centered entryway is a hallmark of timeless design.
  • Gabled Roofline: A simple and elegant gabled roofline adds to the home's traditional charm.
  • Customizable Finishes: The exterior can be finished with a variety of materials, including low-maintenance siding with decorative shutters, to match your personal style.

Available Options & Upgrades

Personalize your Elsinor home with a wide range of available options and upgrades to perfectly match your needs and style.

  • Optional Great Room: The floor plan includes an option to add a large 12'-0" x 26'-0" great room with an optional fireplace, creating an even more expansive living area.
  • Gourmet Kitchen Packages: Upgrade your kitchen with premium options like granite countertops, a tile backsplash, or custom cabinetry and appliances.
  • Luxury Bathroom Finishes: Customize your master bathroom with a fully tiled walk-in shower, a soaking tub, or premium dual vanities.
  • Foundation & Basement Options: Select the right foundation for your property, whether it's a standard slab, a crawlspace, or a full basement to maximize your storage and potential living space.

Why Choose Modular

Choosing a modular home from Tri-County Homes means embracing a modern, efficient, and high-quality building process. Our homes are constructed in a climate-controlled facility, which offers significant advantages over traditional on-site construction by protecting materials and allowing for meticulous quality control.

Quality Construction from the Ground Up

  • Structure: We use 2×10 floor joists and 2x6 exterior walls (16″ on center) for a stronger frame.
  • Roof System: The roof is constructed with engineered trusses and covered with lifetime architectural shingles.
  • Energy Efficiency: All homes come standard with insulated windows featuring low-E/Argon glass and insulation packages.

High-End Features Included as Standard

  • Kitchens: Our kitchens feature high-quality cabinetry with soft-close drawers and your choice of countertops.
  • Bathrooms: Bathrooms come complete with mirrors, towel racks, and high-quality single-piece tub/shower units.
  • Interior Finishes: We use high-quality interior doors and trim, and all closets include shelving.

Tri-County Homes Build Locations

Wondering if we build in your area? Our team provides complete modular home construction services across an extensive portion of Western Pennsylvania, including:

  • Allegheny County
  • Armstrong County
  • Beaver County
  • Butler County
  • Cambria County
  • Clarion County
  • Crawford County
  • Fayette County
  • Forest County
  • Greene County
  • Indiana County
  • Jefferson County
  • Lawrence County
  • Mercer County
  • Somerset County
  • Venango County
  • Warren County
  • Washington County
  • Westmoreland County
Jump Links
  • The Elsinor Floor Plan
  • Specs & Dimensions
  • Interior Layout
  • Exterior Design
  • Available Options & Upgrades
  • Why Choose Modular
  • Tri-County Homes Build Areas
  • Request Pricing
{/exp:channel:entries}
© Copyright 2025 Tri-County Homes. All Rights Reserved