Call Us Today! 1-800-540-1295 | info@TriCountyHomes.com

The Hudson – Two Story Modular Home

A grand and spacious two-story home designed for a large family, featuring four bedrooms and two-and-a-half bathrooms.

The Hudson is a grand and spacious two-story home designed for a large family, featuring four bedrooms and two-and-a-half bathrooms. This 2,464 sq. ft. floor plan offers an incredible amount of living space on the first floor, including a formal living room, a separate family room, and a formal dining room. A dramatic two-story foyer makes a stunning first impression, while the second floor serves as a private family retreat with all four bedrooms, including a large, spacious master suite.

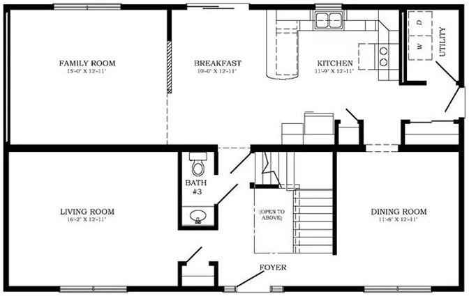
The Hudson Floor Plan

The Hudson floor plan is expertly designed for families who love to entertain. The first floor is a host's dream, featuring a formal living room and dining room, plus a separate, casual family room that is open to the kitchen. The impressive two-story foyer adds a touch of grandeur to the entry. Upstairs, the home transforms into a private sanctuary with four bedrooms, including a luxurious master suite, and two full bathrooms, keeping the family's personal space separate from the main social areas.

Specs & Dimensions

The Hudson offers an expansive two-story layout designed to maximize both social and private living areas.

Detail
Specification
Style Two Story
Square Footage 2,464
Bedrooms 4
Bathrooms 2.5
Dimensions Varies by configuration

Interior Layout

The interior of The Hudson is designed to feel welcoming and spacious on the first floor, and private and comfortable on the second.

First Floor

  • Multiple Living Spaces: This home features a formal living room (16'-0" x 12'-11"), a separate family room (15'-0" x 12'-11"), and a formal dining room (11'-8" x 12'-11"), providing incredible flexibility for any occasion.
  • Two-Story Foyer: A dramatic foyer that is open to the floor above creates a grand and welcoming entrance.
  • Kitchen and Breakfast Nook: The modern kitchen (11'-0" x 12'-11") is adjacent to a sunny breakfast nook measuring 10'-0" x 12'-11".
  • Convenient Half-Bath: A half-bath is conveniently located on the first floor for guests.

Second Floor

  • Upstairs Bedrooms: All four bedrooms are located on the second floor, creating a quiet and private family wing.
  • Spacious Master Suite: Bedroom #1 (17'-3" x 12'-11") serves as a large and luxurious master suite, featuring a private en-suite bathroom and walk-in closet.
  • Additional Bedrooms: Three more comfortable bedrooms provide plenty of space for family and guests, sharing the second full bathroom.

Room Dimensions

Room Dimensions
Living Room 16'-0" x 12'-11"
Family Room 15'-0" x 12'-11"
Dining Room 11'-8" x 12'-11"
Kitchen 11'-0" x 12'-11"
Breakfast Nook 10'-0" x 12'-11"
Bedroom 1 (Master) 17'-3" x 12'-11"
Bedroom 2 11'-4" x 12'-11"
Bedroom 3 11'-8" x 12'-11"
Bedroom 4 11'-8" x 12'-11"

Exterior Design

The Hudson features a classic two-story colonial exterior with a simple, elegant facade that is always in style.

  • Classic Colonial Style: The home's two-story profile with symmetrical windows and a centered entryway is a hallmark of traditional design.
  • Gabled Roofline: A simple and elegant gabled roofline adds to the home's traditional charm.
  • Decorative Windows: The rendering shows an arched window above the entry and bay windows on the first floor, adding a touch of elegance.

Available Options & Upgrades

Personalize your Hudson home with a wide range of available options and upgrades to perfectly match your needs and style.

  • Gourmet Kitchen Packages: Upgrade your kitchen with premium options like granite countertops, a tile backsplash, or custom cabinetry and appliances.
  • Luxury Bathroom Finishes: Customize your master bathroom with a fully tiled walk-in shower, a soaking tub, or other premium fixtures.
  • Exterior Material Upgrades: Choose from a wide array of siding styles and colors, or add a stone or brick facade to the front of the home for a custom look.
  • Foundation & Basement Options: Select the right foundation for your property, whether it's a standard slab, a crawlspace, or a full basement to maximize your storage and potential living space.

Why Choose Modular

Choosing a modular home from Tri-County Homes means embracing a modern, efficient, and high-quality building process. Our homes are constructed in a climate-controlled facility, which offers significant advantages over traditional on-site construction by protecting materials and allowing for meticulous quality control.

Quality Construction from the Ground Up

  • Structure: We use 2×10 floor joists and 2x6 exterior walls (16″ on center) for a stronger frame.
  • Roof System: The roof is constructed with engineered trusses and covered with lifetime architectural shingles.
  • Energy Efficiency: All homes come standard with insulated windows featuring low-E/Argon glass and insulation packages.

High-End Features Included as Standard

  • Kitchens: Our kitchens feature high-quality cabinetry with soft-close drawers and your choice of countertops.
  • Bathrooms: Bathrooms come complete with mirrors, towel racks, and high-quality single-piece tub/shower units.
  • Interior Finishes: We use high-quality interior doors and trim, and all closets include shelving.

Tri-County Homes Build Areas

As a family-owned builder with deep roots in Western Pennsylvania since 1962, Tri-County Homes is proud to serve our local communities. We deliver, set, and finish new modular homes across:

  • Pennsylvania
  • Ohio
  • West Virginia
  • Surrounding small towns and rural counties
Jump Links
  • The Hudson Floor Plan
  • Specs & Dimensions
  • Interior Layout
  • Exterior Design
  • Available Options & Upgrades
  • Why Choose Modular
  • Tri-County Homes Build Areas
  • Request Pricing
{/exp:channel:entries}
© Copyright 2025 Tri-County Homes. All Rights Reserved