Call Us Today! 1-800-540-1295 | info@TriCountyHomes.com

The Oakland - Two Story Modular Home

An elegant and unique two-story home designed for those who desire a truly luxurious master suite.

The Oakland is an elegant and unique two-story home designed for those who desire a truly luxurious master suite. This 2,016 sq. ft. floor plan features three bedrooms, two-and-a-half bathrooms, and the standout feature of a private den connected to the master bedroom. The first floor offers an abundance of living space with a formal living room, a separate family room, and a dining room, making it perfect for entertaining. With its distinctive exterior and thoughtfully designed interior, The Oakland is a remarkable family home.

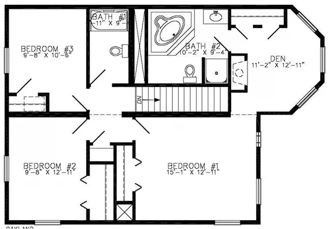
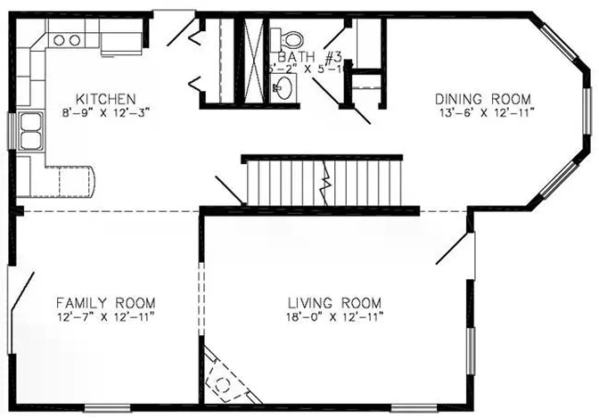
The Oakland Floor Plan

The Oakland floor plan is masterfully designed to provide both impressive social spaces and an unparalleled private retreat for the homeowners. The first floor is an entertainer's dream, featuring a formal living room, a separate family room, and a dining room. Upstairs, the home transforms into a personal sanctuary. The unique master suite includes not only a spacious bedroom and lavish bathroom but also a private den, perfect for a home office, sitting room, or nursery. Two additional bedrooms provide ample space for family or guests.

Specs & Dimensions

The Oakland offers an expansive two-story layout packed with luxurious and unique features.

Detail
Specification
Style Two Story
Square Footage 2,016
Bedrooms 3 + Den
Bathrooms 2.5
Dimensions Varies by configuration

Interior Layout

The interior of The Oakland is designed with elegance and function in mind, featuring distinct zones for living, entertaining, and private relaxation across two floors.

First Floor

  • Multiple Living Spaces: This home features a formal living room (18'-0" x 12'-11"), a separate family room (12'-7" x 12'-11"), and a formal dining room (13'-6" x 12'-11"), providing incredible flexibility.
  • Kitchen: The modern kitchen measures 8'-9" x 12'-3" and is conveniently located with easy access to the dining room.
  • Convenient Half-Bath: A half-bath is conveniently located on the first floor for guests.

Second Floor

  • Unique Master Suite with Private Den: The luxurious master suite features a spacious bedroom (15'-1" x 12'-11") connected to a private den (11'-2" x 12'-11") through the master bathroom, creating a multi-room owner's retreat.
  • Upstairs Bedrooms: Two additional bedrooms (9'-8" x 12'-11" and 9'-8" x 10'-6") are located on the second floor, sharing a full bathroom.

Room Dimensions

Room Dimensions
Living Room 18'-0" x 12'-11"
Family Room 12'-7" x 12'-11"
Dining Room 13'-6" x 12'-11"
Kitchen 8'-9" x 12'-3"
Bedroom 1 (Master) 15'-1" x 12'-11"
Bedroom 2 9'-8" x 12'-11"
Bedroom 3 9'-8" x 10'-6"
Den 11'-2" x 12'-11"

Exterior Design

The Oakland features a distinctive exterior with a unique turret-style front and multiple gables that create an elegant and memorable curb appeal.

  • Turret-Style Front: A prominent two-story bay or turret-style front section gives the home a grand and unique architectural profile.
  • Covered Porch: A cozy covered porch provides a sheltered entry to the home.
  • Multiple Gables & Dormers: A series of gables and dormers adds to the home's complex and custom look.

Available Options & Upgrades

Personalize your Oakland home with a wide range of available options and upgrades to perfectly match your needs and style.

  • Gourmet Kitchen Packages: Upgrade your kitchen with premium options like granite countertops, a tile backsplash, or custom cabinetry and appliances.
  • Luxury Bathroom Finishes: Customize the master bathroom with the large soaking tub or other premium fixtures and vanities.
  • Exterior Material Upgrades: Choose from a wide array of siding, brick, and stone styles and colors to create a custom exterior look that is uniquely yours.
  • Foundation & Basement Options: Select the right foundation for your property, whether it's a standard slab, a crawlspace, or a full basement to maximize your storage and potential living space.

Why Choose Modular

Choosing a modular home from Tri-County Homes means embracing a modern, efficient, and high-quality building process. Our homes are constructed in a climate-controlled facility, which offers significant advantages over traditional on-site construction by protecting materials and allowing for meticulous quality control.

Quality Construction from the Ground Up

  • Structure: We use 2×10 floor joists and 2x6 exterior walls (16″ on center) for a stronger frame.
  • Roof System: The roof is constructed with engineered trusses and covered with lifetime architectural shingles.
  • Energy Efficiency: All homes come standard with insulated windows featuring low-E/Argon glass and insulation packages.

High-End Features Included as Standard

  • Kitchens: Our kitchens feature high-quality cabinetry with soft-close drawers and your choice of countertops.
  • Bathrooms: Bathrooms come complete with mirrors, towel racks, and high-quality single-piece tub/shower units.
  • Interior Finishes: We use high-quality interior doors and trim, and all closets include shelving.

Modular Home Service Regions

Our dedicated team coordinates every aspect of your new home's delivery and setup. We provide comprehensive services to customers in:

  • Allegheny County
  • Armstrong County
  • Beaver County
  • Butler County
  • Cambria County
  • Clarion County
  • Crawford County
  • Fayette County
  • Forest County
  • Greene County
  • Indiana County
  • Jefferson County
  • Lawrence County
  • Mercer County
  • Somerset County
  • Venango County
  • Warren County
  • Washington County
  • Westmoreland County
Jump Links
  • The Oakland Floor Plan
  • Specs & Dimensions
  • Interior Layout
  • Exterior Design
  • Available Options & Upgrades
  • Why Choose Modular
  • Tri-County Homes Build Areas
  • Request Pricing
{/exp:channel:entries}
© Copyright 2025 Tri-County Homes. All Rights Reserved