Call Us Today! 1-800-540-1295 | info@TriCountyHomes.com

The West Point - Two Story Modular Home

A classic two-story colonial home that offers an abundance of space for a large family.

The West Point is a classic two-story colonial home that offers an abundance of space for a large family. This 2,200 sq. ft. floor plan features four bedrooms, two-and-a-half bathrooms, and a versatile first-floor study perfect for a home office. The main floor is designed for both formal entertaining and casual family life, with a living room, dining room, and an open-concept kitchen and breakfast nook. With its stately exterior and highly functional layout, The West Point is a perfect choice for a growing family.

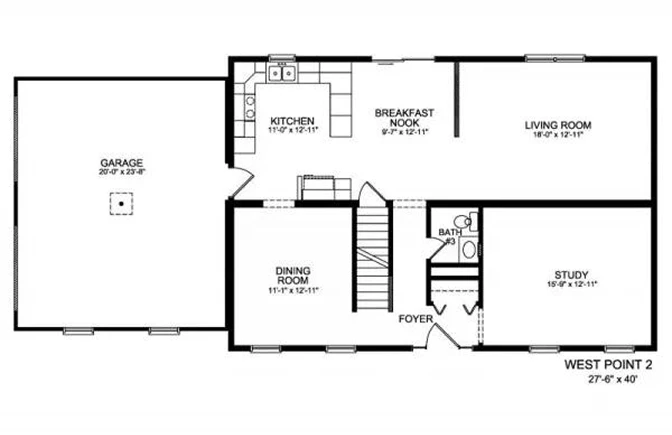
The West Point Floor Plan

The West Point floor plan is expertly designed to accommodate every aspect of family life. The first floor provides a wonderful array of spaces, including a formal living room and dining room for hosting guests, and a more casual open-concept kitchen and nook area for daily meals. A private first-floor study offers a quiet space for work or reading. The second floor serves as the family's private retreat, with all four bedrooms and two full bathrooms located upstairs.

Specs & Dimensions

The West Point offers an expansive two-story layout packed with features for a large family.

Detail
Specification
Style Two Story / Colonial
Square Footage 2,200
Bedrooms 4
Bathrooms 2.5
Dimensions 27'-6" x 40'
Garage 2-Car (20'-6" x 23'-8")

Interior Layout

The interior of The West Point is designed to feel both welcoming and highly functional, with distinct zones for social and private activities across two floors.

First Floor

  • Multiple Living Spaces: This home features a formal living room (18'-0" x 12'-11"), a separate dining room (11'-1" x 12'-11"), and a versatile study (15'-6" x 12'-11").
  • Kitchen and Breakfast Nook: The modern kitchen (11'-0" x 12'-11") is adjacent to a sunny breakfast nook measuring 9'-7" x 12'-11".
  • Convenient Half-Bath: A half-bath is conveniently located on the first floor for guests.

Second Floor

  • Upstairs Bedrooms: All four bedrooms are located on the second floor, creating a quiet and private family wing.
  • Spacious Master Suite: Bedroom #1 (19'-8" x 12'-10") serves as the master suite, featuring a private en-suite bathroom and a walk-in closet.
  • Additional Bedrooms: Three more comfortable bedrooms provide plenty of space for family and guests, sharing the second full bathroom.

Room Dimensions

Room Dimensions
Living Room 18'-0" x 12'-11"
Dining Room 11'-1" x 12'-11"
Study 15'-6" x 12'-11"
Kitchen 11'-0" x 12'-11"
Breakfast Nook 9'-7" x 12'-11"
Bedroom 1 (Master) 19'-8" x 12'-10"
Bedroom 2 11'-1" x 12'-11"
Bedroom 3 11'-9" x 9'-1"
Bedroom 4 11'-3" x 9'-1"

Exterior Design

The West Point features a stately and traditional two-story exterior with a charming front porch that creates a classic, welcoming curb appeal.

  • Full Front Porch: An expansive covered front porch runs the width of the main house, providing ample space for outdoor relaxation and adding classic charm.
  • Classic Colonial Style: The home's two-story profile with symmetrical windows and a centered entryway is a hallmark of traditional design.
  • Attached Garage: The home is designed with a two-car attached garage that offers convenience and adds to the home's substantial presence.

Available Options & Upgrades

Personalize your West Point home with a wide range of available options and upgrades to perfectly match your needs and style.

  • Gourmet Kitchen Packages: Upgrade your kitchen with premium options like granite countertops, a tile backsplash, or custom cabinetry and appliances.
  • Luxury Bathroom Finishes: Customize your master bathroom with a fully tiled walk-in shower, a soaking tub, or other premium fixtures.
  • Exterior Material Upgrades: Choose from a wide array of siding styles and colors, or add a stone or brick facade to the front of the home for a custom look.
  • Foundation & Basement Options: Select the right foundation for your property, whether it's a standard slab, a crawlspace, or a full basement to maximize your storage and potential living space.

Why Choose Modular

Choosing a modular home from Tri-County Homes means embracing a modern, efficient, and high-quality building process. Our homes are constructed in a climate-controlled facility, which offers significant advantages over traditional on-site construction by protecting materials and allowing for meticulous quality control.

Quality Construction from the Ground Up

  • Structure: We use 2×10 floor joists and 2x6 exterior walls (16″ on center) for a stronger frame.
  • Roof System: The roof is constructed with engineered trusses and covered with lifetime architectural shingles.
  • Energy Efficiency: All homes come standard with insulated windows featuring low-E/Argon glass and insulation packages.

High-End Features Included as Standard

  • Kitchens: Our kitchens feature high-quality cabinetry with soft-close drawers and your choice of countertops.
  • Bathrooms: Bathrooms come complete with mirrors, towel racks, and high-quality single-piece tub/shower units.
  • Interior Finishes: We use high-quality interior doors and trim, and all closets include shelving.

Construction & Delivery Areas

Our expertise in modular home construction extends throughout the beautiful landscapes of Western PA. Let us build your dream home in any of the following counties:

  • Allegheny County
  • Armstrong County
  • Beaver County
  • Butler County
  • Cambria County
  • Clarion County
  • Crawford County
  • Fayette County
  • Forest County
  • Greene County
  • Indiana County
  • Jefferson County
  • Lawrence County
  • Mercer County
  • Somerset County
  • Venango County
  • Warren County
  • Washington County
  • Westmoreland County
Jump Links
  • The West Point Floor Plan
  • Specs & Dimensions
  • Interior Layout
  • Exterior Design
  • Available Options & Upgrades
  • Why Choose Modular
  • Tri-County Homes Build Areas
  • Request Pricing
{/exp:channel:entries}
© Copyright 2025 Tri-County Homes. All Rights Reserved